Ещё 5 фото
Сначала новые
Вам ответят эксперты. Пришлем уведомление, когда вам ответят
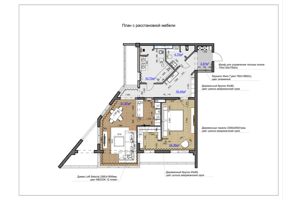
Контемпорари, диагональная стена, план, планировка, планировка угловой квартиры, тупой угол в помещении
Ольга Семиглазова
Дизайнеры интерьера
0
отзывов
Рейтинг
Контемпорари
Семиглазова Ольга, Важинская Наталья