FLYING HOUSE
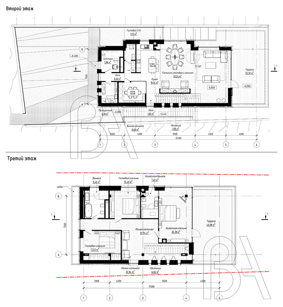
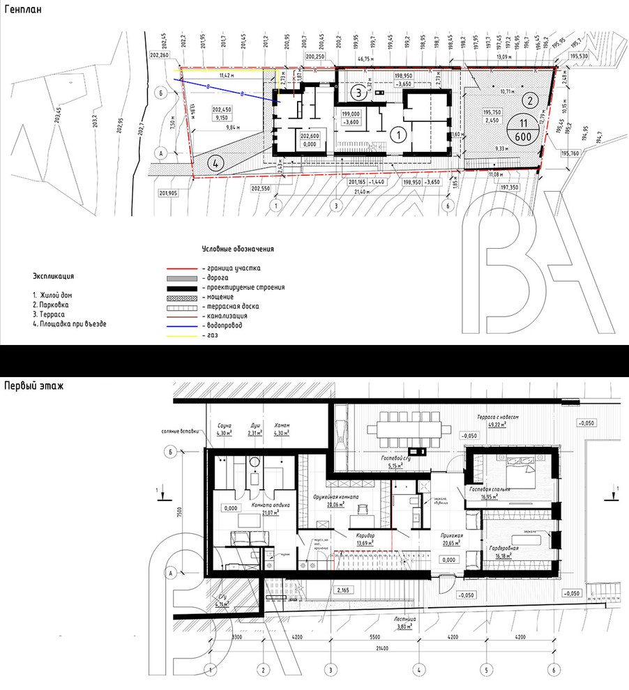
Индивидуальный жилой дом Fly House . . Концепция: . На маленьком узком участке общей площадью 6 соток, участке с крутым рельефом c общим перепадом около 10 метров, вырос четырехуровневый частный дом. Дом полностью интегрирован в сложный ландшафт и практически на 1/3 врезается в крутой склон. . Идея объемно-пространственной композиции здания возникла как ассоциация с темой моря и яхты, в результате создался визуальный образ корабля с большими открытыми палубами, обращенными в сторону водохранилища и солнца. Каждая палуба образовывает уровень со своими специфическими функциями и наполнением. Нижний - решает задачу подъезда и парковки на три машины и обслуживания коммуникаций в помещениях инвентарной зоны. Вышележащий уровень дома отвечает задаче по развлечению и приему гостей, здесь появляется крытая терраса с мангалом, гостевая комната, прихожая с гардеробом и банно-релаксационный комплекс. Поднявшись на третий уровень - мы попадаем в открытое панорамное пространство общественной зоны с комнатой для дегустации вин и игры в карты и блоком обслуживания всего здания. И последний верхний уровень носит приватный характер, здесь располагаются хозяйская спальня и две детские. . Для решения фасадов пошли по пути инверсии материалов - стены отделаны светлым серым кирпичом с мягким переплетением тонов приглушенной патины и шлифованного алюминия. Пояса карнизов кровли, террас и свесов напротив - отделаны темной и ярко-выраженной термо-древесиной из европейских пород ясеня. Отмостка, лестницы и забор также получили темную деревянную отделку. Все это создает целостный эко-образ дома, ощущение уюта и комфортабельного шика. Дополнительную интригу и необычность привносит специально разработанный паттерн кирпичной кладки: узкий длинный кирпич ригель-формата порезан на три толщины. Из кирпича трех толщин возникает игра в барельеф, особенно этот эффект прослеживается на углах дома, создавая с одной стороны некий “дикарский образ”, с другой показывая высокий уровень качества материалов и фасадной облицовки. . Здание на крутом рельефе - это, с одной стороны, вызов архитектору, но, с другой, и удовольствие от решения сложности поставленной задачи, как по функциональной организации внутри, так и по решению внешнего облика дома. . . Общая площадь: 400,3м2. . Местонахождение: . Дом запроектирован на участке 6 соток в 100 метрах от водохранилища Пироговское в Московской области, Россия. . Конструктивные решения: . Фундамент: свайное поле с монолитной ж/б подошвой в основании с обратной засыпкой под домом щебнем. . Наружные стены: полный несущий монолитный ж/б каркас с заполнением крупноформатным кирпичом Braer. . Межэтажные перекрытия: плиты монолитные ж/б. . Внутренние перегородки: кирпич, пеноблок, ГКЛ на каркасе. . Лестницы: металл. . Кровля: монолитная ж/б плоская неэксплуатируемая с полимерным покрытием. . Фасадные решения: . Окна и двери: витражное остекление, входня дверь на заказ. . Фасад и цоколь: сланец,имитирующий кирпич ригельформата, и лиственница с покраской Biofa. . Свес кровли: монолитный ж/б с подшивкой планкеном из термоясеня. . Террасы и отмостка: термомодифицированная террасная доска на сплошном основании.
15 фотографий
















