Эскизный проект каркасно-щитового дома в посёлке "Улыбка" Тульской области.
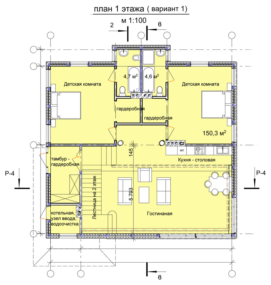
Эскизный проект 2-х этажного каркасно-щитового дома с двухсветной гостиной выполнен по техническому заданию заказчика, как дом выходного дня в коттеджном посёлке "Улыбка" Заокского района Тульской области.
Год реализации: 2015
Стоимость проектирования: 34 999 ₽
4 фотографии





