Чертежи к дизайн-проекту 3-х комнатной квартиры на проспекте Ленина в Туле.
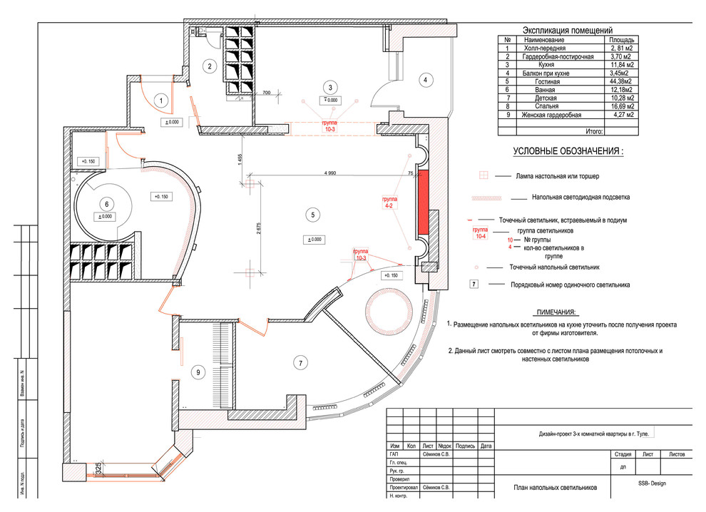
Дизайн проект выполнен по техническому заданию для молодой семьи с ребёнком трёх лет в новостройке в Туле. Произведена значительная перепланировка квартиры и выполнены, по отдельному проекту, сложные работы по организации дверных проёмов в несущих стенах и согласованы с генпроектировщиком дома - Тульскгражданроектом. . В дизайн проект также вошли чертежи индивидуальных изделий - портала на кухню, дверей и решётки для биокамина в гостиной (предоставлены выборочные чертежи).
Год реализации: 2012
Стоимость проектирования: 34 999 ₽
8 фотографий









