logo

Вопросы к фото 0

Задайте вопрос

Вам ответят эксперты. Пришлем уведомление, когда вам ответят

Рустика, дом выходного дня

Сергей, 8-952-188-71-80

Сергей, 8-952-188-71-80

Архитекторы

Смотреть профиль

0

отзывов

0

Рейтинг

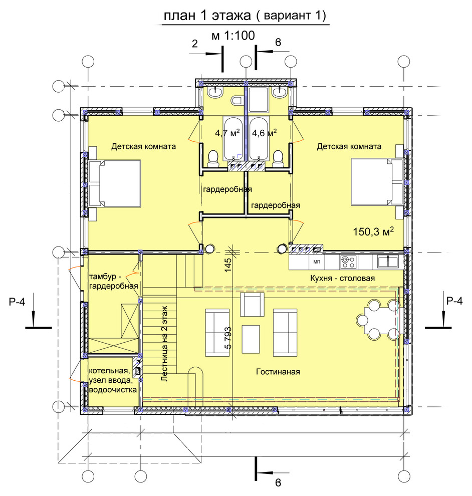
Эскизный проект каркасно-щитового дома в посёлке "Улыбка" Тульской области.

Эскизный проект 2-х этажного каркасно-щитового дома с двухсветной гостиной выполнен по техническому заданию заказчика, как дом выходного дня в коттеджном посёлке "Улыбка" Заокского района Тульской области.

Вопросы к фото 0