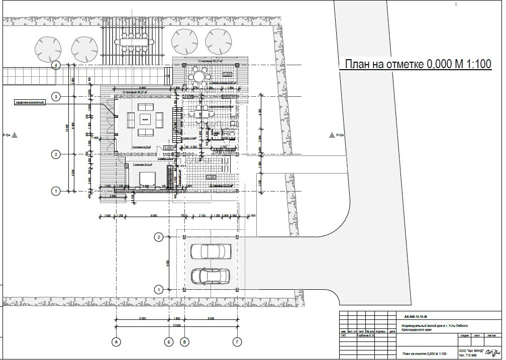
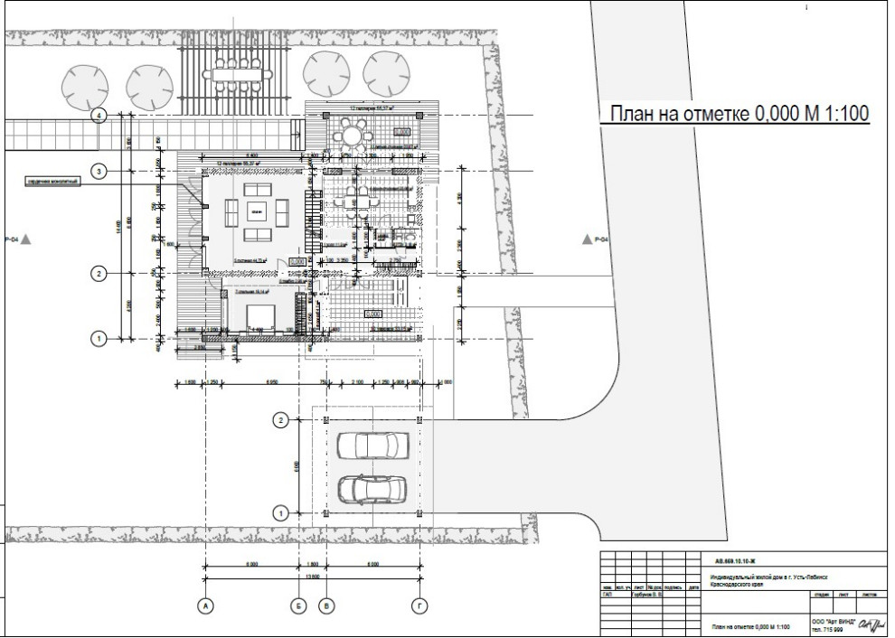
Профиль пользователяЭкономичный дом до 200 кв.м. для строительства на ровном участке.Год реализации: 20213 фотографииПоделитьсяСохранитьВ фотопотокеВ фотопотокеЭкономичный дом до 200 кв.м. для строительства на ровном участке.ПоделитьсяСохранитьЭкономичный дом до 200 кв.м. для строительства на ровном участке.ПоделитьсяСохранитьЭкономичный дом до 200 кв.м. для строительства на ровном участке.ПоделитьсяСохранить