logo
ФотоЭкспертыСтатьи
Профиль пользователя

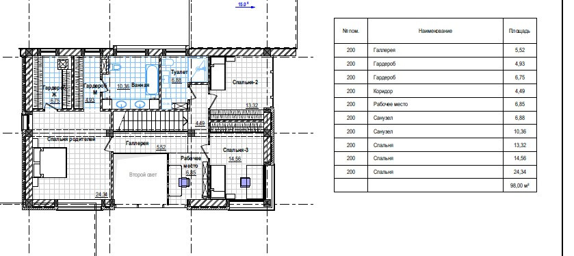
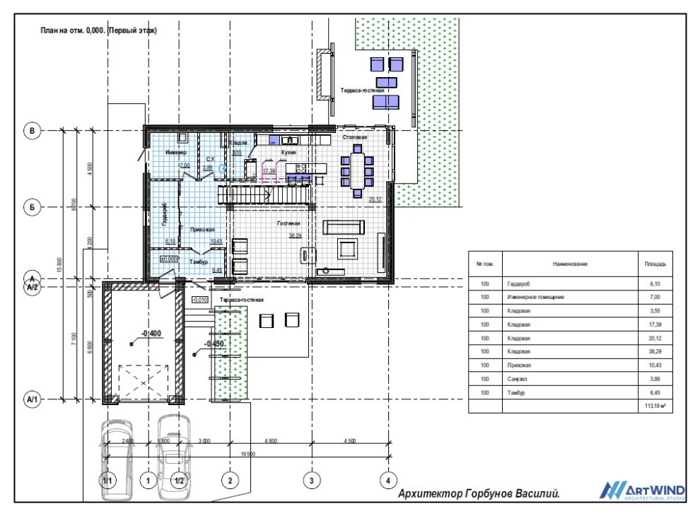
Экономичный дом до 200 кв.м.

photo

4 фотографии

Экономичный дом до 200 кв.м.
Экономичный дом до 200 кв.м.
Экономичный дом до 200 кв.м.
Экономичный дом до 200 кв.м.
Экономичный дом до 200 кв.м.
Экономичный дом до 200 кв.м.
Экономичный дом до 200 кв.м.
Экономичный дом до 200 кв.м.
Фоновое изображение профиля Василий Горбунов
Фото профиля Василий Горбунов

Василий Горбунов

5

6 отзывов

Архитекторы

Контакты

г. Новороссийск, Офис: ул. Свердлова 36/ пр. Ленина,3.
О насМы в прессеFAQКонтакты
ВкДзенTelegramTelegram Pro
Pro
Instagram

Продукт компании Meta, признанной экстремистской организацией, деятельность которой запрещена в РФ

Связаться с поддержкой
Пользовательское соглашениеПолитика в отношении обработки персональных данных