
Архитекторы
5
·
10 отзывов
Экономичный дом до 200 кв.м. для строительства на ровном участке.
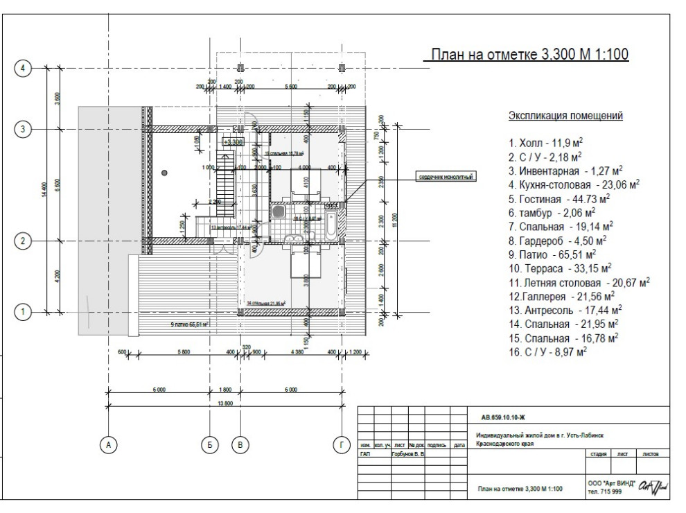
План 2 этажа: Две спальни с общей ванной комнатой, площадью более 8 кв.м. Просторная веранда в сторону хорошего вида. Площадь Террасы можно использовать для размещения 3 спальни или комнаты для хобби, кабинета. Очень гибкая планировка легко приспосабливается под любые потребности семьи.
Другие фотографии в проекте
Вопросы к фото 0
Задайте вопрос
Вам ответят эксперты. Пришлем уведомление, когда вам ответят

