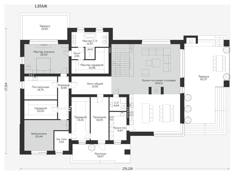
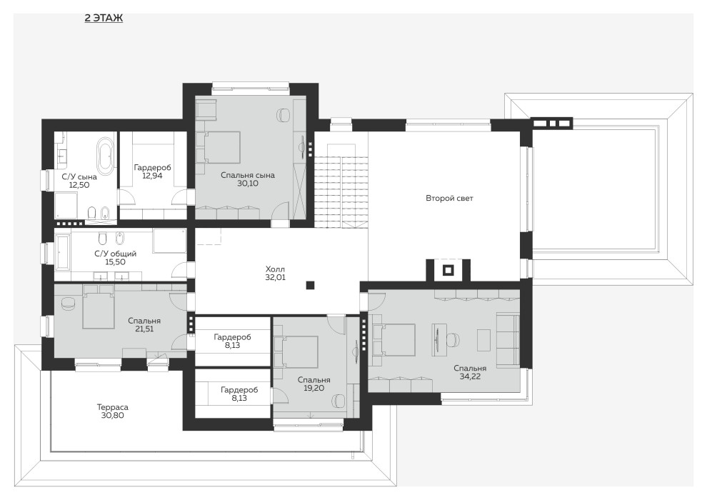
Профиль пользователяДвухэтажный дом в стиле Райта М454Год реализации: 20224 фотографииПоделитьсяСохранитьДвухэтажный дом в стиле Райта М454ПоделитьсяСохранитьДвухэтажный дом в стиле Райта М454ПоделитьсяСохранитьДвухэтажный дом в стиле Райта М454ПоделитьсяСохранитьДвухэтажный дом в стиле Райта М454ПоделитьсяСохранить