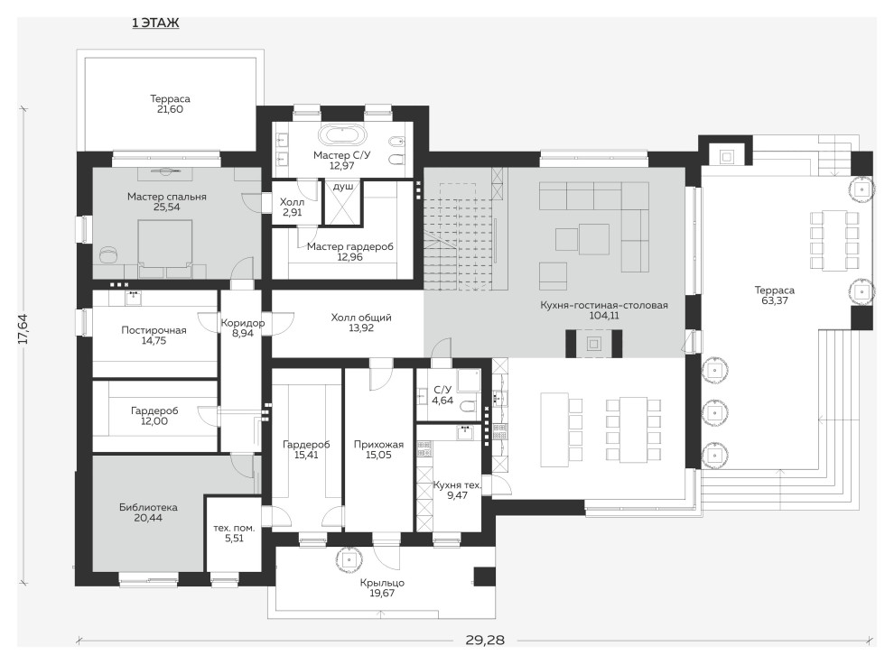
Двухэтажный дом в стиле Райта М454

Другие фотографии в проекте Двухэтажный дом в стиле Райта М454

Двухэтажный дом в стиле Райта М454
Двухэтажный дом в стиле Райта М454
Двухэтажный дом в стиле Райта М454

Вопросы к фото 0

Задайте вопрос

Вам ответят эксперты. Пришлем уведомление, когда вам ответят

Двухэтажный дом, дом в стиле Райта, мера, мера-проект, план дома, современный дом