logo
Войти
Профиль пользователя

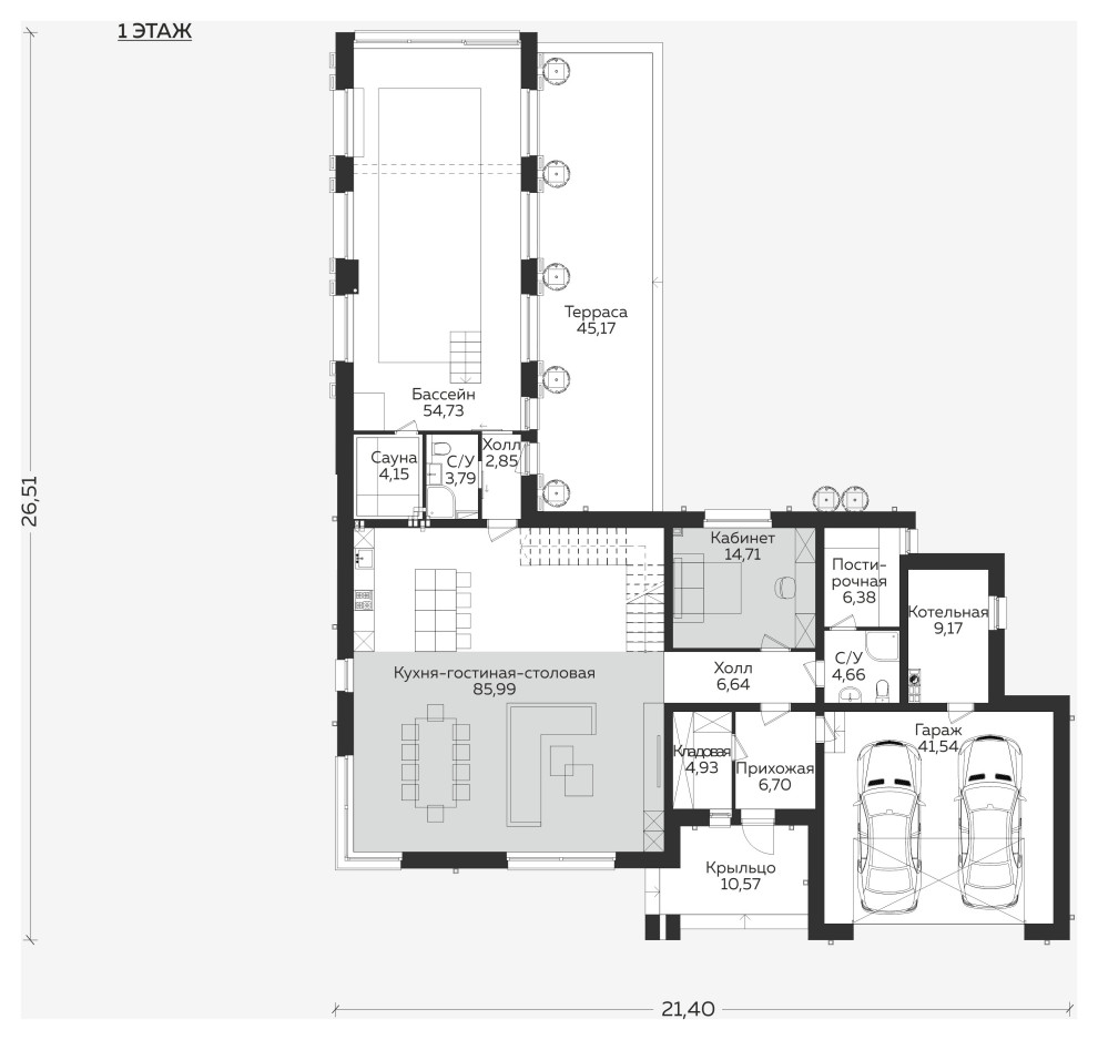
Дом с бассейном М446

Год реализации: 2022
photo

4 фотографии

Дом с бассейном
Дом с бассейном
Дом с бассейном
Дом с бассейном
Дом с бассейном
Дом с бассейном
Дом с бассейном
Дом с бассейном
Фоновое изображение профиля Мера Архитектурная Студия
Фото профиля Мера Архитектурная Студия

Мера Архитектурная СтудияМера Архитектурная Студия

0

0 отзывов

Архитекторы

Контакты

г. Санкт-Петербург, пр. Стачек 16

Все проекты

Дом с панорамными окнами М450

Двухэтажный дом в стиле Райта М454

Проекты домов в стиле фахверк

Проекты домов в классическом стиле

Проект M280Z - Дом с плоской кровлей / Flat-roof house

Проект М265 - дом в стиле модерн / Project M265 - Art-nouveau house

Смотреть все
Флатика
О насМы в прессеFAQКонтактыМатериалыКарта сайта

«Флатика» в соцсетях:

ПинтерестМаксВкДзенTelegramTelegram Pro
Pro
Instagram

Продукт компании Meta, признанной экстремистской организацией, деятельность которой запрещена в РФ

Пользовательское соглашениеПолитика в отношении обработки персональных данных

© 2026 Flatica

ФотоЭкспертыСтатьи