DS-097
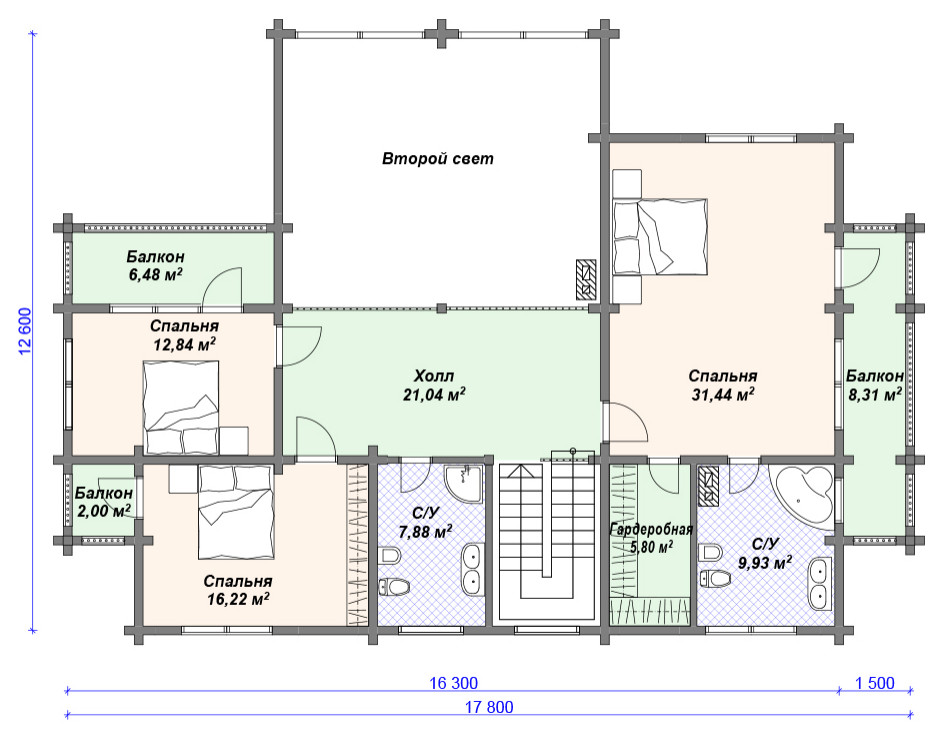
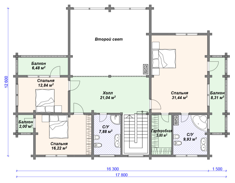
Дом из клееного бруса 334 м2 . . Задумывая этот проект, его создатели стремились обеспечить будущих владельцев коттеджа максимальным уютом и комфортом, не забывая и об экстерьере дома. Фасады особняка из клееного бруса отличаются обилием оригинальных архитектурных элементов, сплошное остекление эркера создает ощущение особого простора, позволяя в любую погоду наслаждаться живописными видами за окном. . . В доме запланированы 5 входов, гарантирующих удобное использование всех помещений. Согласно традиции, главной комнатой первого этажа стала гостиная, объединенная с кухней-столовой. Хозяйственные помещения – постирочная и бойлерная – отделены от жилых комнат, на этаже также расположены спальня и санузел. Верхний этаж занимают уютные спальни, достоинством проекта является просторный холл второго этажа, удивительный объем и легкость придает ему второй свет. Изящные балконы не только украшают фасад, но и позволяют насладиться свежим воздухом и красотой пейзажей. . . Подробнее: https://sokoldom.com/projects/ds-097
6 фотографий







