logo
Войти
Профиль пользователя

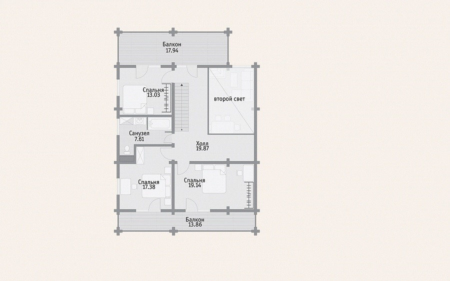
DS-015

Год реализации: 2024
photo

3 фотографии

DS-015
DS-015
DS-015
DS-015
DS-015
DS-015
Фоновое изображение профиля Sokol Dom
Фото профиля Sokol Dom

Sokol DomSokol Dom

5

2 отзыва

Проектирование и строительство

Контакты

+7 921 733-73-37mail@sokoldom.comг. Москва, ул. Нижняя Сыромятническая д. 11, корпус Бsokoldom.com

Все проекты

БН-141

БН-181

DS-005

DS-128

DS-094

DS-097

Смотреть все
Флатика
О насМы в прессеFAQКонтактыМатериалы

«Флатика» в соцсетях:

ПинтерестМаксВкДзенTelegramTelegram Pro
Pro
Instagram

Продукт компании Meta, признанной экстремистской организацией, деятельность которой запрещена в РФ

Пользовательское соглашениеПолитика в отношении обработки персональных данныхКарта сайта

© 2026 Flatica

ФотоЭкспертыСтатьи