DS-094
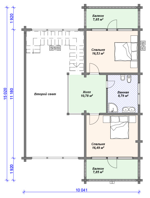
Дом из клееного бруса 312 м2 . . Разноуровневый дом с асимметричной крышей, эффектным панорамным остеклением и оригинальной террасой придется по вкусу поклонникам современных архитектурных решений. Коттедж из клееного бруса имеет черты колониального стиля и, несомненно, украсит собой ваш участок. . . Отличительной чертой этого проекта стала угловая затененная терраса и изящные балконы с балюстрадой. Планировка жилого пространства выполнена с учетом актуальных тенденций в частном домостроении: большую часть первого этажа занимает просторная гостиная, выполняющая также функции столовой и кухни. Помимо гостиной здесь расположены кабинет, спальня и большое количество хозяйственных помещений. Раздельный санузел очень удобен для большой семьи. Центральным помещением второго этажа стал компактный холл, второй свет позволяет организовать здесь комфортное пространство для отдыха. Две спальни с выходом на собственный балкон имеют одинаковую площадь и расположены симметрично относительно холла. . . Подробнее: https://sokoldom.com/projects/ds-094
6 фотографий







