дом в Московской области
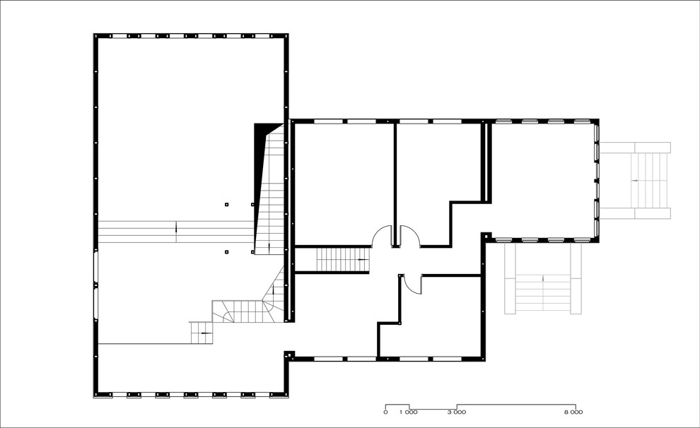
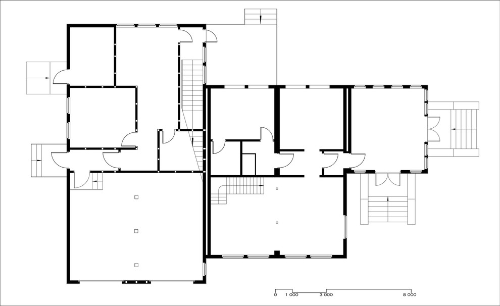
Заказчица — профессиональный фотограф — пожелала дом с домашней фотостудией, зимним садом для матери, гостевой частью и гаражом на две машины. . Фотостудии требуется много свободного пространства и света. Поэтому мы решили совместить фотостудию с гостиной. Чтобы впустить в помещение как можно больше света мы сориентировали помещение, габаритами 10х8х6 метров на Запад и Восток огромными во всю высоту помещения витражами, что позволило весьма глубокому помещению полностью освещаться естественным солнцем в течение светлого времени суток круглый год. Теперь фотостудия стала идеальным местом для принятия хозяйкой дома солнечных ванн даже зимой. . Так как длина безопорного пролета составляет 8 метров (что невозможно выполнить в деревянном брусе), то Исполнителем специально для крыши фотостудии была разработана деревянная ферма. Сочетание высоких окон и ажурных ферм делает фотостудию изнутри немного похожей на готический собор.
21 фотография






















