Квартира в Погонном
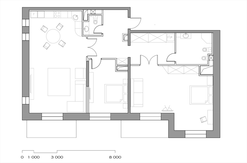
Проект интерьера квартиры в Погонном проезде был интересен тем, что у него по сути было две пары заказчиков: Молодая пара и пара пожилых родителей мужа, под которых и создавался данный интерьер, в прошлом четырехкомнатная квартира с двумя небольшими уборными. . Основное требование пожилой пары — спокойный и простой интерьер, стилистически напоминающий об их юности. . Молодая же пара хотела для своих родителей просторные комнаты, большую современную технологически кухню, отдельную гардеробную для родителей и все те “западные” атрибуты интерьера, которые недоступны были советскому обывателю. . Мы успешно нашли компромисс между видениями поколений и объединили две маленькие комнаты в большой хозяйский блок, куда вошли спальня, санузел, гардеробная и выход на отдельную лоджию. А объединив кухню с гостинной мы успешно решили проблему с естественным освещением.
8 фотографий








