Квартира на Смоленской
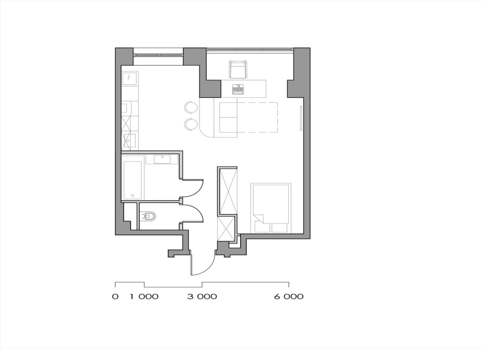
Компактные интерьеры — всегда интересная задача для архитектора. . Как уместить на площади в 40 квадратных метров все необходимое молодой семье? и кабинет для работы мужа и просторную светлую спальню, и комфортную кухню чтобы у жены было все под рукой? С этими вопросами обратились к нам заказчики. . Мы предложили отгораживать спальню от остальной квартиры не перегородками, а шторой. Это даст возможность закрыть спальню в случае приезда гостей, но в открытом состоянии освещать ее светом солнца из застекленной лоджии напротив.
Год реализации: 2015
Стоимость проектирования: 135 000 ₽
7 фотографий







