Дом в КП Сантория
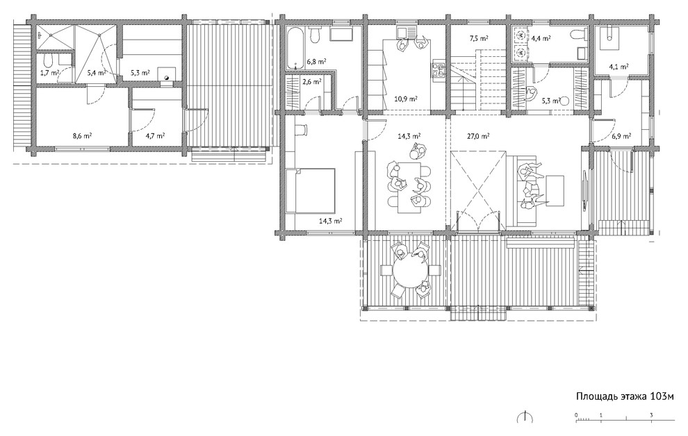
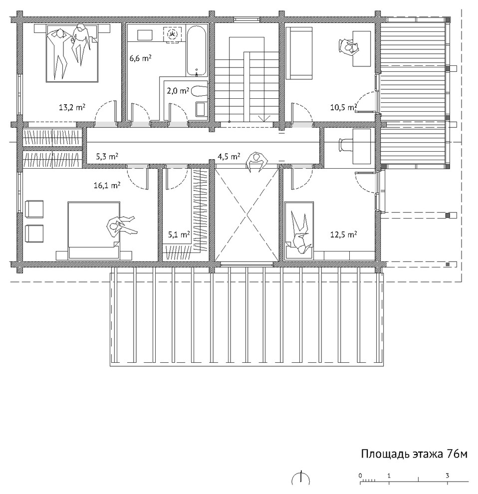
Дом для большой семьи из трех поколений. Размещение дома и его ориентированность определены из контекста застройки коттеджного поселка, подъезда к участку и движения солнца. . Гостиная, столовая и терраса обращены к югу и участку, их объединяет двойной свет – это "cердце" дома, место притяжения его обитателей и гостей. . Основная спальня удалена от суеты первого этажа, остальные спальни занимают второй этаж. . Стенокомплект из клеёного бруса, с деревянными конструкциями перекрытий и кровли.
Год реализации: 2017
Стоимость проектирования: 12 250 000 ₽
13 фотографий














