
Архитекторы
5
·
2 отзыва
Дом в КП Сантория
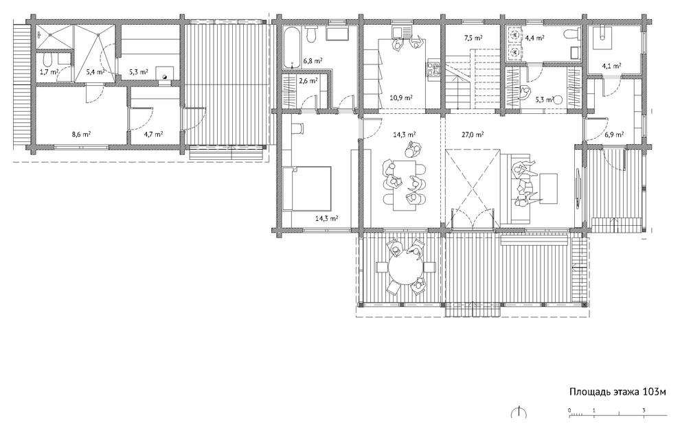
Гостиная, столовая и терраса обращены к югу и участку, их объединяет двойной свет – это "cердце" дома, место притяжения его обитателей и гостей. Основная спальня удалена от суеты первого этажа, остальные спальни занимают второй этаж
Другие фотографии в проекте
Вопросы к фото 0
Задайте вопрос
Вам ответят эксперты. Пришлем уведомление, когда вам ответят




