
Архитекторы
5
·
2 отзыва
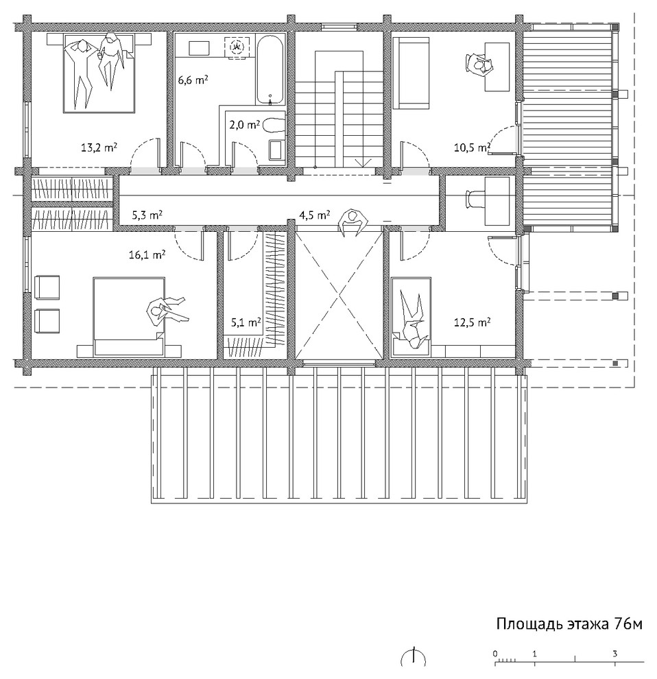
Дом в КП Сантория
Второй этаж устроен с рациональным подходом к компоновке. Исключением стал двойной свет отделяющий детскую часть от взрослой и терраса при кабинете
Другие фотографии в проекте
Вопросы к фото 0
Задайте вопрос
Вам ответят эксперты. Пришлем уведомление, когда вам ответят




