Дом в Ятко
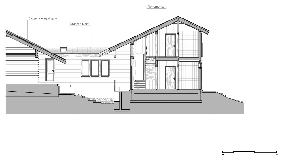
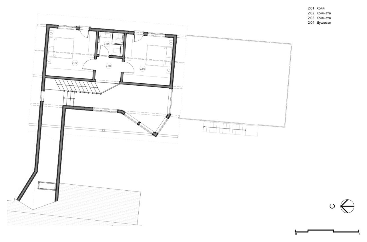
Участок в пос. Ятко вытянут в плане, расстояние по длинной стороне составляет 110 метров, а перепад высот на этом протяжении 4 метра. Кроме существующего бревенчатого дома, рядом с ним до начала проекта, была отлита фундаментная плита без конкретного функционального назначения. Задание включало в себя расширение жилой площади дома, проект бани и организацию въездной площадки. Проектом решили задействовать не использовавшийся фундамент и создать пристройку к дому с дополнительными комнатами для детей, родителей и кабинетом. . Для связи старой и новой части дома на первом этаже используется поднятая над участком галерея. Благодаря изменению рельефа и усилению уклона, две постройки не разделили участок на два изолированных друг от друга фрагмента, а ландшафтные и архитектурные задачи решались в проекте единым фронтом. Личные комнаты пристройки ориентированы на восточную сторону; галерея, гостиная и терраса на юго-запад. Чтобы подчеркнуть связь внутренних пространств с садом, запроектированы выходы на террасу из комнат первого этажа, на втором этаже используются французские балконы. Плоская крыша с садом над стоянкой для машин связывается с террасой лестницей и обращена на юг. Проходя под парящей над участком галереей, дорожка приводит в тихую часть участка с баней. Здесь создан ступенчатый рельеф, который продемонстрировал разницу отметок в 2 метра; а также удалось сохранить растительность, которая используется как часть архитектурного проекта. Малая роща из сосен и берез создает «лесной» вид из комнаты отдыха в одноэтажной бане, у которой над пятиметровой высоты гостиной, крыша с окнами, через которые видно небо и попадает вечерний солнечный свет.
15 фотографий














