Дом в Тайцах
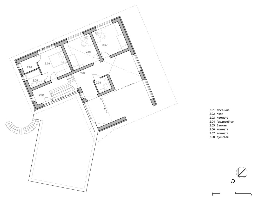
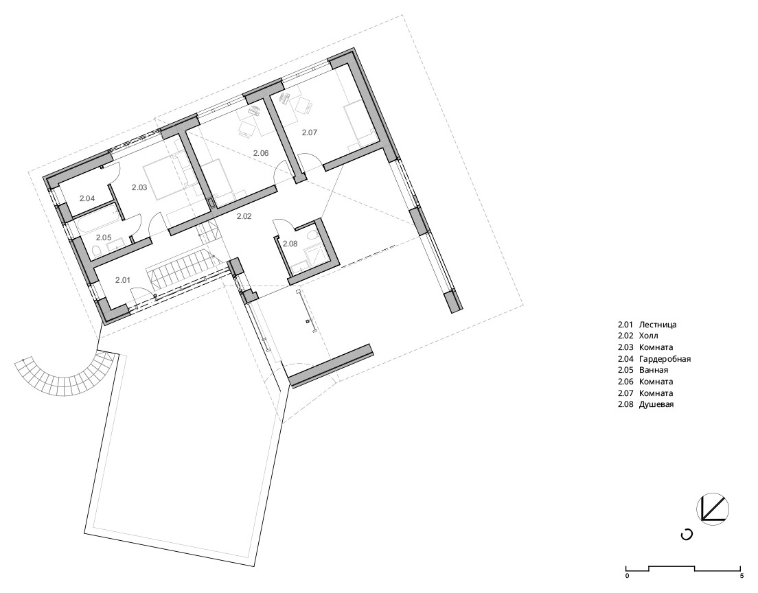
Участок в п. Тайцы неправильной конфигурации, перепад высот по диагонали полтора метра и два въезда на территорию, со стороны коттеджного поселка и со стороны внешней дороги, минуя пост охраны. Это было использовано в работе над планировкой участка дома. Конфигурация участка и ориентация по сторонам света определила планировочное решение дома. Личные комнаты развернуты на восток, общесемейные пространства выходят на юго-западную сторону и связаны с участком посредством просторной террасы треугольной конфигурации. На участок организованы два въезда, которые создают приемную зону с достаточным местом для гостевых машин. Это бульвар, который приводит ко входу в дом. Перепад высот также находит отражение в структуре дома. Подвижки в пол метра по высоте дают возможным обозначить главное и второстепенное пространство. Въезд в гараж на уровне земли, а входная площадка в дом (крыльцо) поднята на три ступени, лестница организует движение и формирует направление. Внутреннее пространство делится на три части: приемное, общесемейное и личное. Центральная площадь внутри дома объединяет помещения и распределяет потоки. Фундаментальное место в интерьере занимает лестница, которая выполняет ряд функций. Промежуточная площадка связана с плоской крышей стоянки. Отверстие в перекрытии дает свет западного солнца в гостиные помещения. Рекреационное пространство растворяется в главных помещениях. Плоская крыша становится второй гостиной, но под открытым небом, а земляная насыпь пластически связывает дом с участком и сближает второй этаж с уровнем земли. Конструкция крыши создает единое пространство интерьера и террасы и формирует верхнее освещение для интерьера.
18 фотографий



















