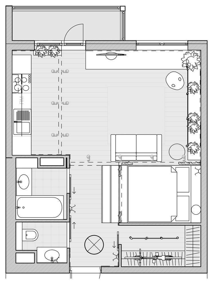
Дизайн-проект квартиры-студии и изготовление мебели под заказ на севере Питера
Год реализации: 2015
7 фотографий
7 фотографий

Небольшая уютная квартира на школьной, изготовление мебели под проект
Дизайн-проект лофт квартиры-студии и мебели
квартира-студия - ярусное зонирование пространства с помощью мебели
Дизайн-проект квартиры и мебели в Сестрорецке
Дизайн-проект квартиры с индивидуальной мебелью под заказ
Частный дом, детский блок в пос. Лебяжье