
Мебель и аксессуары
0
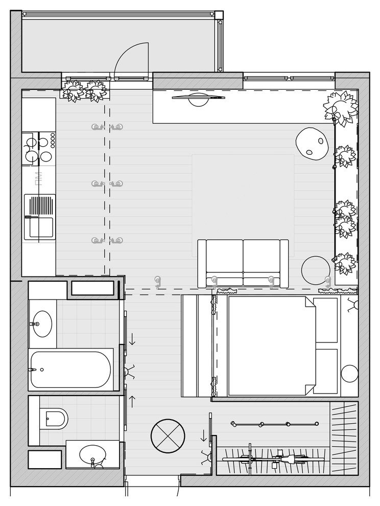
Дизайн-проект квартиры-студии и изготовление мебели под заказ на севере Питера
Архитектор- Сергей Шведов, фотограф- Ирина Веремьёва, Изготовление мебели - Фабрика Пространства
Другие фотографии в проекте
Вопросы к фото 0
Задайте вопрос
Вам ответят эксперты. Пришлем уведомление, когда вам ответят




