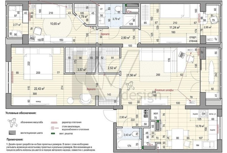
Дизайн 4-комнатной квартиры П-46М, Железнодорожный
Дизайн-проект разработан для семьи из четырех человек: родителей, дочери-подростка и сына 8 лет. Необходимо было превратить квартиру в уютное семейное гнездышко, где было бы комфортно всем членам семьи. Хозяева, люди жизнерадостные и веселые, желали получить яркий и необычный, но вместе с тем функциональный интерьер.
11 фотографий












