
Cтудия дизайна интерьера KV-Design
Дизайнеры интерьера
5
·
10 отзывов
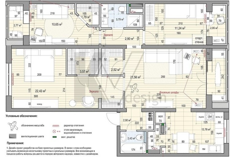
Дизайн 4-комнатной квартиры П-46М, Железнодорожный
Панельные дома П-46М ограничены в возможностях перепланировки из-за обилия несущих стен. Мы обособили входную зону, устроив вход в кухню из гостиной, в несущей стене, а ванную комнату частично сместили в бывшую прихожую. Прежний санузел и коридор присоединили к кухне, оборудовав кладовку и нишу под холодильник, что дало дополнительные места под хранение и позволило увеличить площадь помещения.
Другие фотографии в проекте
Вопросы к фото 0
Задайте вопрос
Вам ответят эксперты. Пришлем уведомление, когда вам ответят




