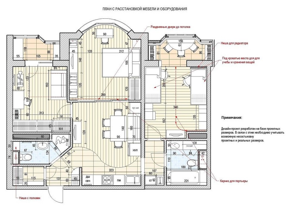
Дизайн двухкомнатной квартиры И-155, Кузьминки
Год реализации: 2015
Стоимость проектирования: 135 000 ₽
г. Москва, Юго-Восточный административный округ
9 фотографий
9 фотографий

Дизайн двухкомнатной квартиры в Химках
Проект трехкомнатной квартиры в Тропарево-Никулино
Трехкомнатная квартира серии П-3М, м. Академическая
Проект трехкомнатной квартиры в ЖК «Бутово Парк 2»
Дизайн приемной зоны в офисе Yokogawa Electric
Трехкомнатная квартира в Зеленограде
Проект квартиры на проспекте Вернадского