
Cтудия дизайна интерьера KV-Design
Дизайнеры интерьера
5
·
10 отзывов
Дизайн двухкомнатной квартиры И-155, Кузьминки
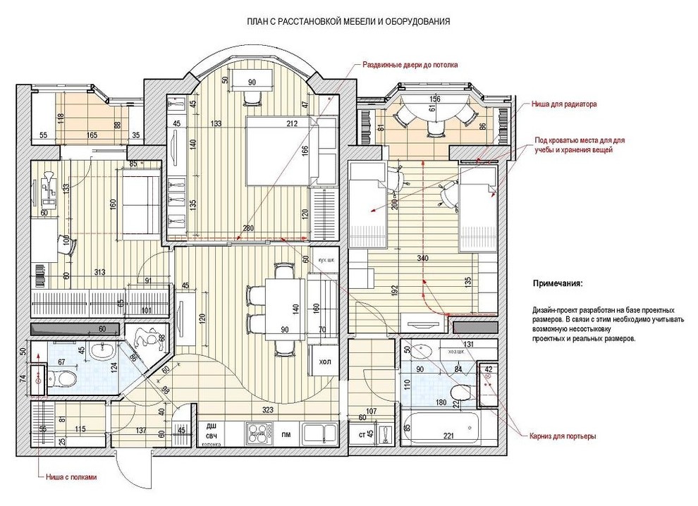
Получить желаемое количество комнат удалось благодаря глобальной перепланировке: стенку между коридором и гостиной мы демонтировали, получившееся помещение разделили раздвижными перегородками на кухню, которую перенесли на место коридора, и на родительскую спальню в зоне с окном. В помещении бывшей кухни обустроили детскую. Таким образом, мы получили нужное количество комнат и уютную, солнечную благодаря пропускающим свет перегородкам, кухню-столовую.
Другие фотографии в проекте
Вопросы к фото 0
Задайте вопрос
Вам ответят эксперты. Пришлем уведомление, когда вам ответят




