Декор-проект детской для мальчика
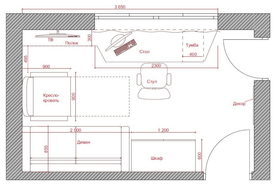
Задачей было разработать рабочее место для школьника, а также подобрать мебель и декор. Кровать и панно на стене уже были в комнате, менять их заказчица не захотела.
Год реализации: 2022
Стоимость проектирования: 34 999 ₽
3 фотографии




