БЫСТРО!ПРОЕКТ из бюджетного сегмента. Москва, Химки
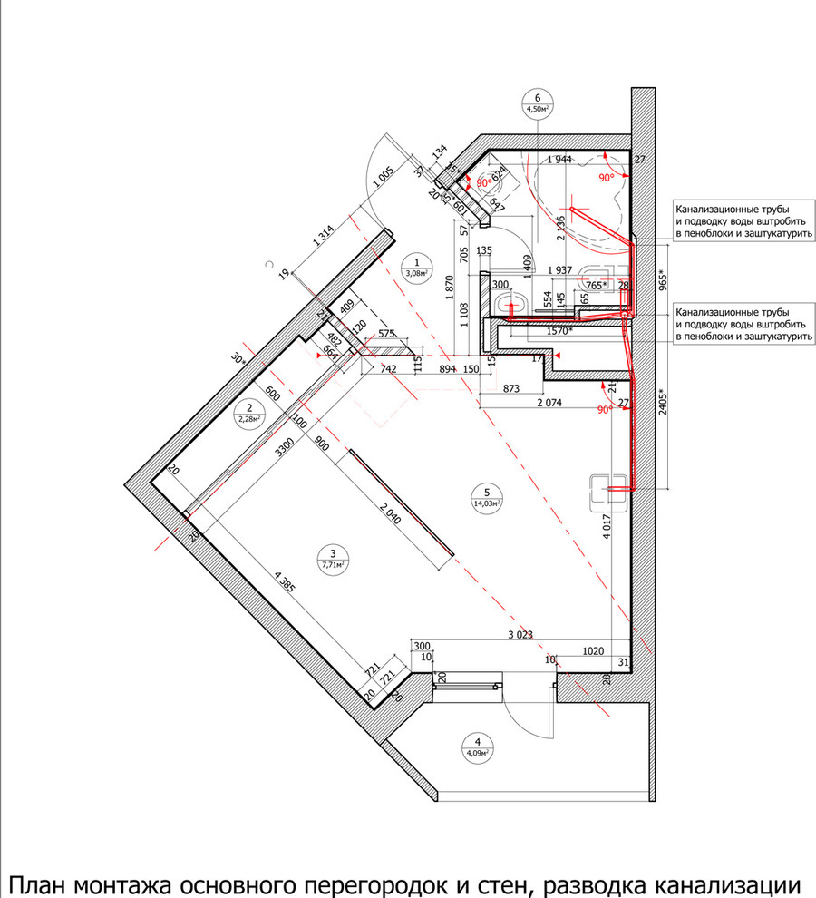
По техзаданию этот проект (один из ряда БЫСТРО!ПРОЕКТОВ) был выполнен для квартиры, предназначенной под дальнейшую сдачу в аренду в достаточно бюджетном сегменте. . Срок исполнения: . 1. Эскизной части (семь вариантов) - три дня . 2. Проектной части без 3D-визуализаций - четыре дня . Условия . - толковое ТЗ (техзадание), изложенное в вольной форме . - ряд фотографий с "места катастрофы" :)) . - Обмеры, выполненные по моим рекомендациям . Все элементы - свет, напольная керамика, мебель IKEA, двери, электрик; все решения выполнены с расчетом дешевизны и добротности, долговечности эксплуатации . Все работы по проектированию выполнены удаленным способом, что заметно удешевило бюджет проектирования и время исполнения. . .
7 фотографий








