logo
Один БЫСТРО!ПРОЕКТ из бюджетного сегмента. Москва, Химки

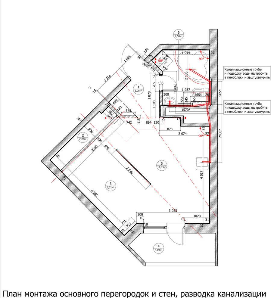
Другие фотографии в проекте БЫСТРО!ПРОЕКТ из бюджетного сегмента. Москва, Химки

Один БЫСТРО!ПРОЕКТ из бюджетного сегмента. Москва, Химки
Один БЫСТРО!ПРОЕКТ из бюджетного сегмента. Москва, Химки
Один БЫСТРО!ПРОЕКТ из бюджетного сегмента. Москва, Химки
Один БЫСТРО!ПРОЕКТ из бюджетного сегмента. Москва, Химки
Один БЫСТРО!ПРОЕКТ из бюджетного сегмента. Москва, Химки
Один БЫСТРО!ПРОЕКТ из бюджетного сегмента. Москва, Химки

Вопросы к фото 0

Задайте вопрос

Вам ответят эксперты. Пришлем уведомление, когда вам ответят

elevation, interior designer, modern, open floor plan, plan, project, speedplan, Контемпорари, Ремонт, дизайнпроект, план, планировка, проект, разрез, современный стиль, чертежи