"Марсианские хроники"
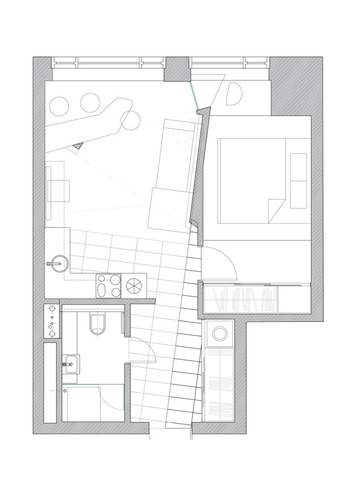
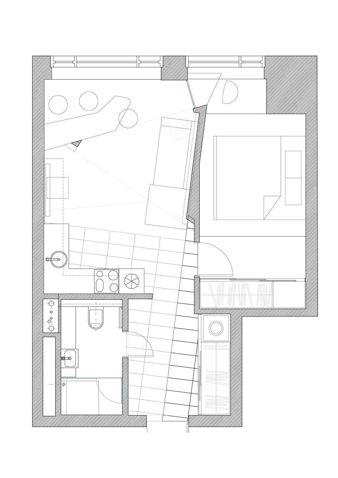
Авторский дизайн и отделочные работы в малогабаритной квартире в ЖК "SREDA"
Год реализации: 2021
Стоимость проектирования: 275 000 ₽
г. Москва, Рязанский проспект, Юго-Восточный административный округ
27 фотографий
Авторский дизайн и отделочные работы в малогабаритной квартире в ЖК "SREDA"
27 фотографий
