Apartment with a View of the Cruiser Aurora
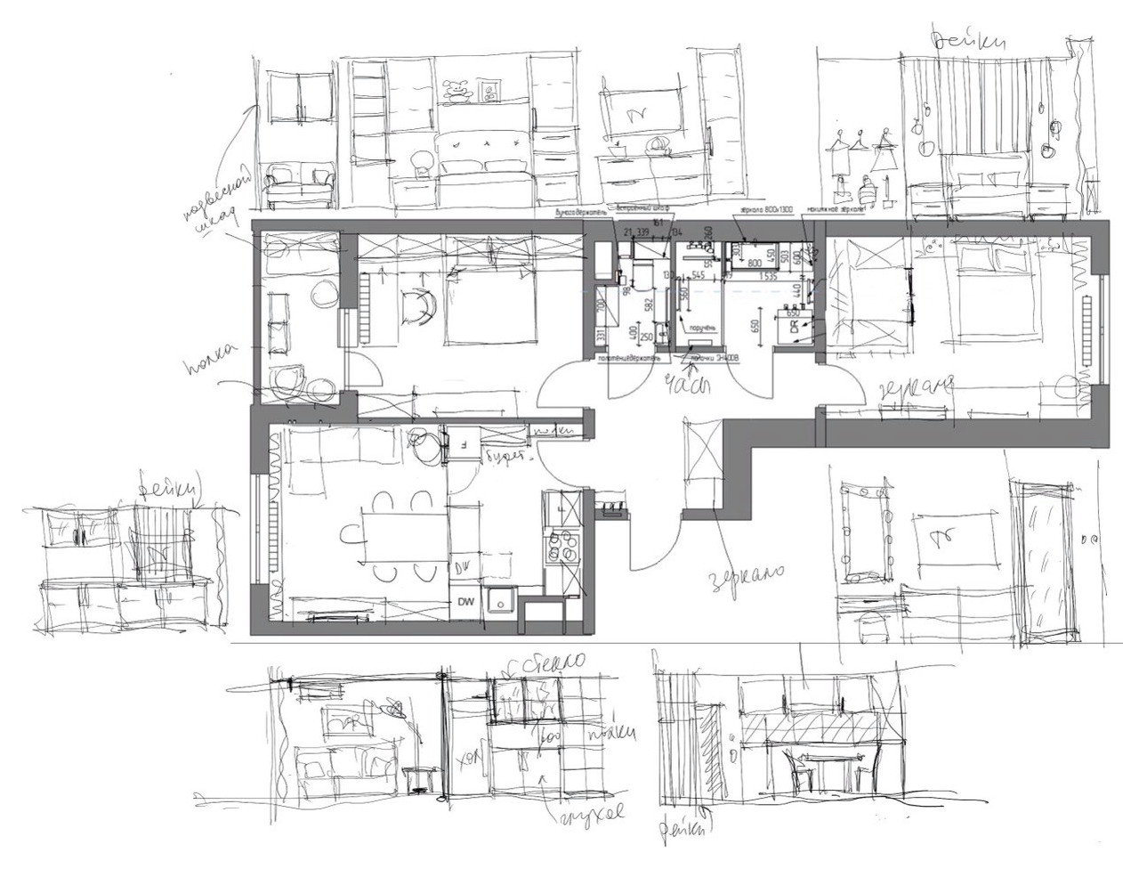
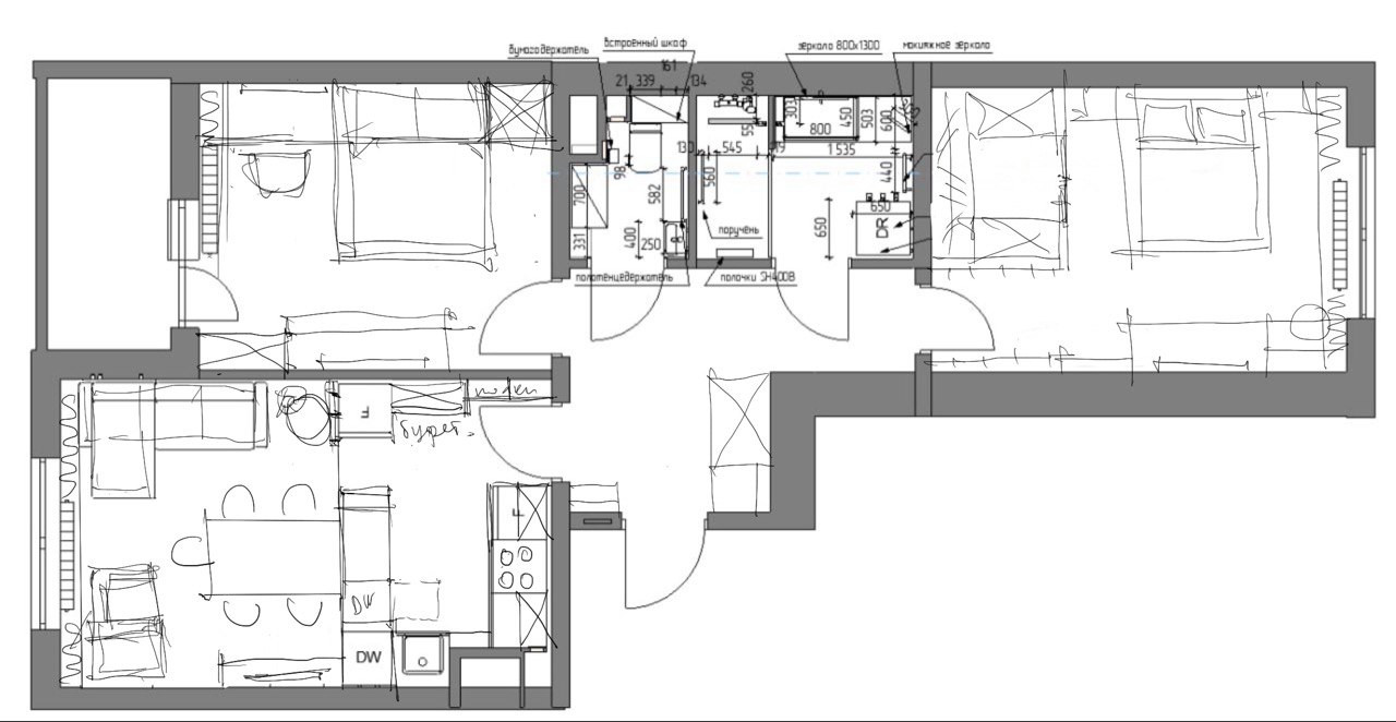
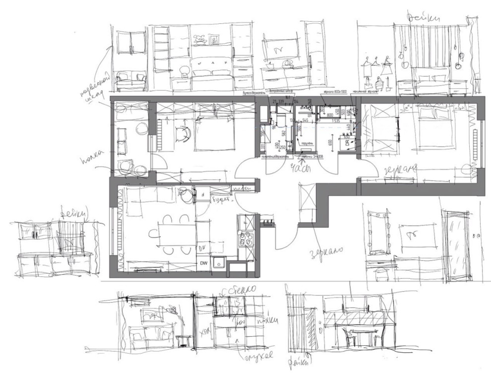
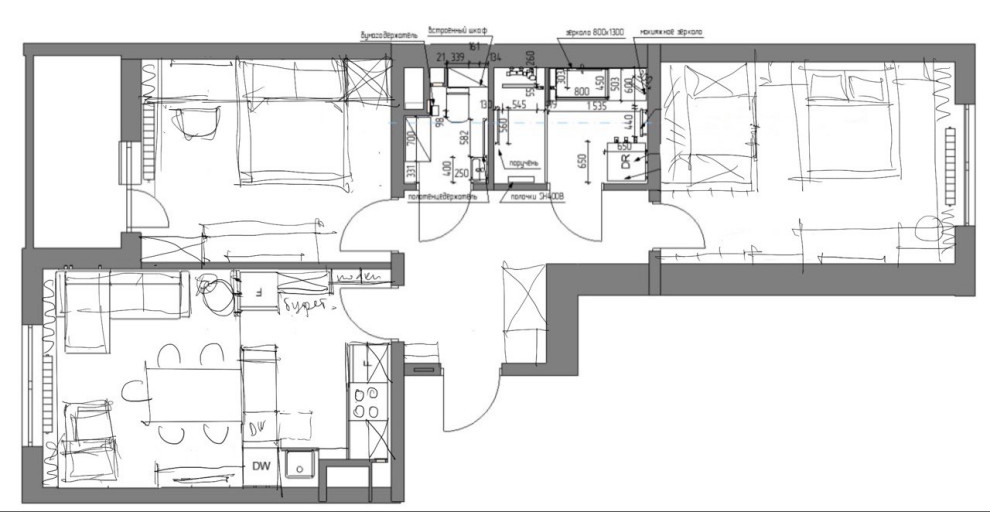
Квартира с видом на Крейсер Аврора, Санкт-Петербург, 2023 год. . . После успешного завершения интерьера офисного пространства в Санкт-Петербурге, через некоторое время, ко мне снова обратились за помощью. . Необходимо было создать интерьер для частной квартиры с видом на Крейсер Аврора. . Это была типовая новостройка с типовой финишной отделкой для продажи. . Квартира имеет высокие потолки, две комнаты и довольно светлую кухню на 9 этаже, площадью около 70 кв.м. . Бюджет был ограниченный и стояла задача, минимальными средствами, создать эффектный и уютный интерьер в стиле лофт для семьи из 3-х человек, к которым часто приезжают гости и чтобы для всего и всех хватило места. Так как квартира не очень большая, необходимо было разместить максимальное количество мест для хранения и я разработала систему встроенной мебели для каждого помещения. . Я разработала уютнейшие функциональные решения для квартиры. Первым делом, я разделила зону кухни и гостиной, встроила полноценную вместительную кухню с антресолями, добавила кофейную зону, выгородила зону столовой, оставив гостиную с удобным диваном и столиком для просмотра любимых фильмов с пледом и подушечками. Когда приедут гости, диван можно будет разложить и разместить на ночь. При этом у них не будет ощущения, что они спят на кухне. . В спальне я организовала полноценный и вместительный гардероб. Гладильную доску я спрятала за зеркало и повесила на стене рядом с гардеробом. Таким образом можно собирать комплекты одежды и сразу видеть себя в полный рост, а при необходимости без труда погладить. . Основной бюджет ушел на реорганизацию ванной комнаты и санузла, а также встроенную мебель в них. Полностью заменили плитку на полу и стенах, увеличили душевой поддон, убрали ванную, встроили на ее место стиральную и сушильную машину в шкафу. В ванной и туалете, чтобы избежать эффекта колодца, я предложила опустить потолки на комфортную высоту, тем самым удалось сократить расходы на отделку стен. Я придумала несколько вариантов тумбы для раковины с отделением для хранения белья и ящиками для хранения косметики, фена и других бытовых мелочей. Проработала несколько сценариев освещения, верхнее и точечное, включая подсветку зеркала основного и макияжного. Установили новый электрический полотенцесушитель напротив душа, чтобы удобно было брать теплое полотенце выходя их него. Установили новую красивую душевую перегородку. Добавили функциональные полочки и крючки для полотенец и одежды. . В детской также обустроила несколько зон, для сна, уроков, творчества и уходом за собой. Спроектировала большой вместительный гардеробный шкаф соединенный со столом и подсветкой. Полноценную двухместную кровать разместила в углу, которая с мягкими панелями по стенам создает эффект дивана, декорированный пледом и множеством подушек, который создает уют и не забивает пространство. Нашлось место для консольного столика с большим зеркалом с мягким и пушистым пуфом. . Прихожую также разработала с учетом потребностей заказчика. Спроектировала большой шкаф для верхней одежды, встроенный пуф и полочки для обуви спрятанные за фасадами, отдельно создала ящик для разных мелочей и ключей. Большое зеркало в полный рост разместила на входной двери, выкрасив полотно под цвет основных межкомнатных дверей. . В комнатах я сохранила обои, покрасив их новой краской, оставив визуальный высокий белый карниз. Заменили двери, плинтуса и фурнитуру электрики, сохранив полы и пару светильников. . Все сценарии освещения были доработаны, добавлены к функциональным зонам новые светильники и подсветка. . . Проект создавался и воплощался в жизнь полностью удаленно совместно с комплектатором Кравец Анастасией! . Это был успешный тандем заказчика, дизайнера и комплектатора! . . Apartment with a View of the Cruiser Aurora . Location: Saint Petersburg, 2023 . . After successfully completing the interior design of an office space in Saint Petersburg, I was approached again to design a private apartment with a view of the Cruiser Aurora. This apartment, located in a standard new building with typical finishes, features high ceilings, two rooms, and a bright kitchen on the 9th floor, with an area of about 70 square meters. . . Project Requirements: . The budget was limited, and the goal was to create an impressive and cozy loft-style interior for a family of three, with frequent guests, ensuring ample space for everyone. Given the apartment's size, maximizing storage was crucial, so I developed a system of built-in furniture for each room. . . Design Solutions: . . Kitchen and Living Area: I separated the kitchen and living area, integrated a spacious kitchen with overhead storage, added a coffee zone, and created a dining area. The living room was equipped with a comfortable sofa and a table for watching movies, complete with blankets and cushions. The sofa can be converted into a bed for guests, ensuring they don't feel like they're sleeping in the kitchen. . Bedroom: A full and spacious wardrobe was organized. An ironing board was hidden behind a mirror on the wall next to the wardrobe, allowing outfits to be coordinated and seen in full view, and making ironing easy when needed. . Bathroom: Most of the budget was allocated to reorganizing the bathroom and toilet and adding built-in furniture. The tiles on the floor and walls were completely replaced, the shower tray was enlarged, and the bathtub was removed to install a washing machine and dryer in a cabinet. To avoid a "well" effect, I proposed lowering the ceilings to a comfortable height, reducing wall finishing costs. Various vanity options were designed with storage for laundry and drawers for cosmetics and household items. Multiple lighting scenarios were planned, including overhead and spot lighting, as well as backlighting for the main and makeup mirrors. A new electric towel rail was installed opposite the shower for convenient access to warm towels. A beautiful new shower partition was added, along with functional shelves and hooks for towels and clothing. . Children's Room: Several zones were created for sleeping, studying, creativity, and self-care. A large wardrobe was connected to a desk with lighting. A full-size double bed was placed in the corner, with soft wall panels creating a sofa effect, decorated with a throw and many pillows for a cozy feel. There was also space for a console table with a large mirror and a soft, fluffy pouf. . Hallway: The hallway was designed to meet the client's needs, with a large wardrobe for outerwear, built-in pouf, and shelves for shoes hidden behind facades. A separate drawer was created for various small items and keys. A full-length mirror was placed on the entrance door, painted to match the main interior doors. . Walls and Floors: The wallpaper was preserved and painted with new colors, maintaining a visually high white cornice. Doors, baseboards, and electrical fittings were replaced, while the floors and a few light fixtures were retained. All lighting scenarios were refined, and new lights and backlighting were added to functional zones. . Collaboration and Execution: . The project was designed and executed entirely remotely in collaboration with procurement specialist Anastasia Kravets. This successful partnership between the client, designer, and procurement specialist ensured a well-coordinated and beautifully realized project.
21 фотография





















