Другие фотографии в проекте Apartment with a View of the Cruiser Aurora
Ещё 10 фото
Сначала новые
Вам ответят эксперты. Пришлем уведомление, когда вам ответят
Москва
Alexandra Gurfinkel
Архитекторы
0
отзывов
Рейтинг
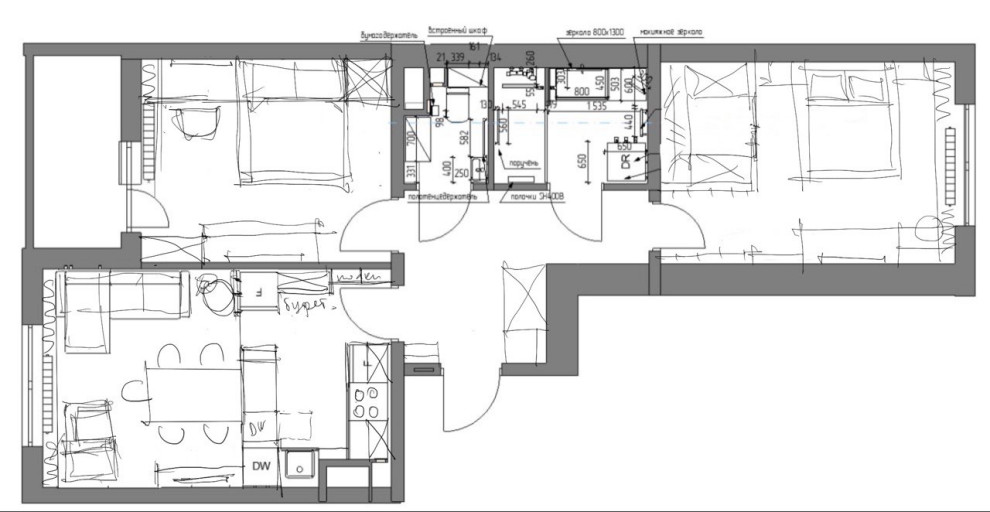
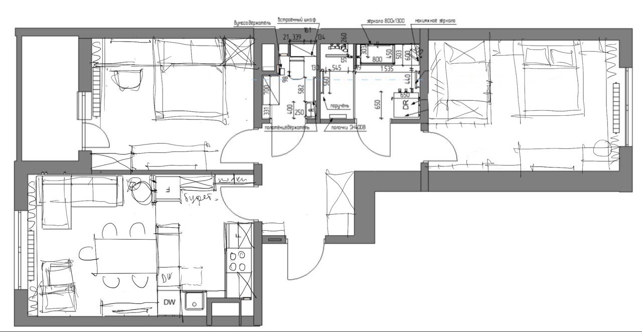
эскиз планировки