logo
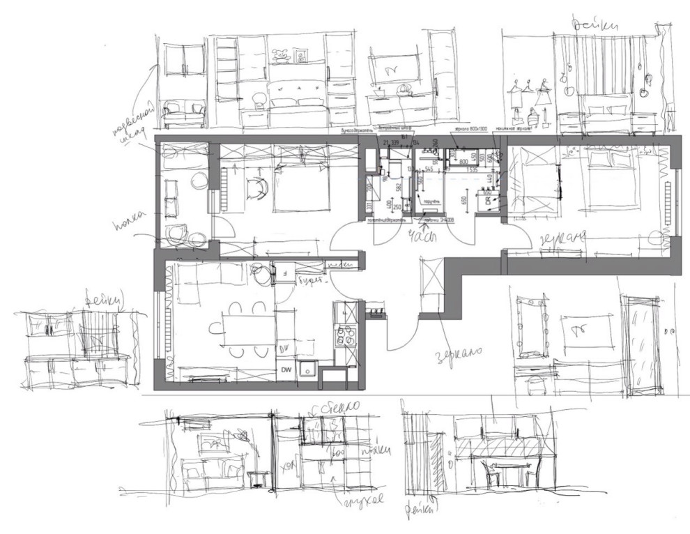
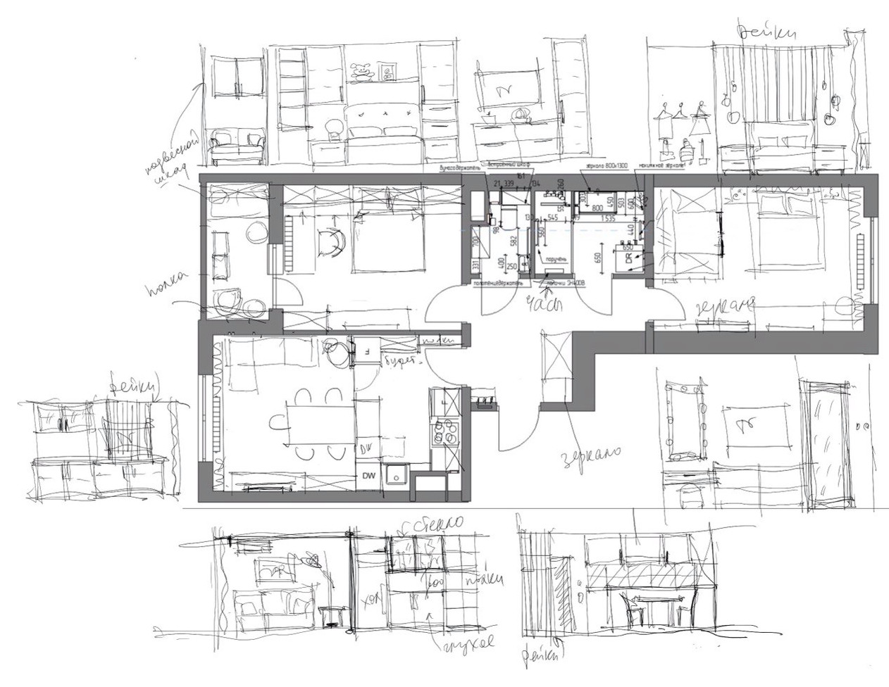
Квартира с видом на Аврору

Другие фотографии в проекте Apartment with a View of the Cruiser Aurora

Вопросы к фото 0

Задайте вопрос

Вам ответят эксперты. Пришлем уведомление, когда вам ответят

Москва