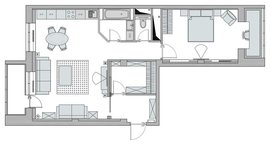
70 m2
Проект опубликован в рубрике Houzz «В Гостях»: . https://www.houzz.ru/ideabooks/65790693/list/v-gostyah-kvartira-dlya-pobeditelya
Год реализации: 2015
Стоимость проектирования: 2 450 000 ₽
9 фотографий
Проект опубликован в рубрике Houzz «В Гостях»: . https://www.houzz.ru/ideabooks/65790693/list/v-gostyah-kvartira-dlya-pobeditelya
9 фотографий
