
Дизайнеры интерьера
0
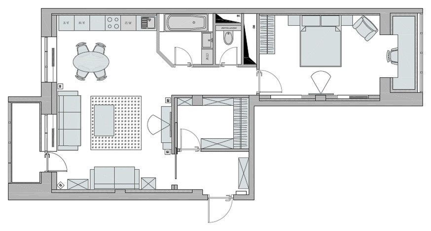
70 m2
Проект опубликован в рубрике Houzz «В Гостях»: . https://www.houzz.ru/ideabooks/65790693/list/v-gostyah-kvartira-dlya-pobeditelya
Другие фотографии в проекте
Вопросы к фото 0
Задайте вопрос
Вам ответят эксперты. Пришлем уведомление, когда вам ответят




