
Интерьер частного заведения 6
7
г. Калининград

Дизайнеры интерьера
Нет отзывов
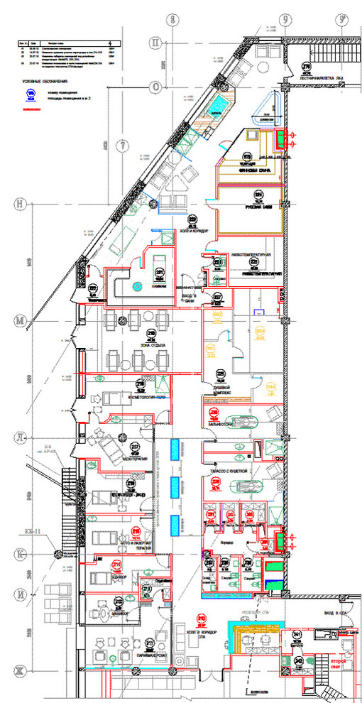
Вот уже более 10 лет -с начала 2006 года- наша компания занимается проектированием, оснащением, консалтингом в сфере фитнеса и красоты. Наши клиенты - Салоны красоты, SPA - центры, Фитнес клубы, Wellness, Медицинские и косметологические клиники, Рестораны и кафе, Гостиницы, частные интерьеры. Являясь дилером ведущих поставщиков фитнес, СПА, косметологического, медицинского, HoReCa оборудования, мы готовы оснастить любой объект всем необходимым-под ключ, по самым выгодным ценам! Наша компания располагает высококвалифицированным составом специалистов проектировщиков, дизайнеров, управленцев, консалтеров, инженерно-технических работников, а так же работников рабочих и реставрационных специальностей, проходящих плановые аттестации, что позволяет производить работы любой сложности и предлагает сотрудничество в осуществлении процесса развития Вашего бизнеса, на взаимовыгодных условиях.
