
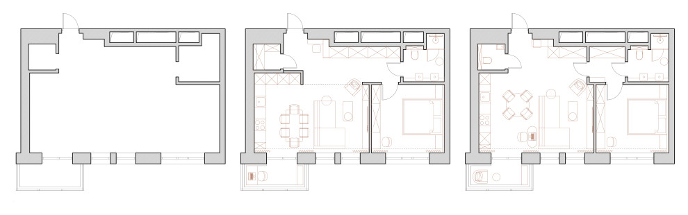
1-комнатная квартира в ЖК Лунный, г.Домодедово
28
г. Домодедово

Дизайнеры интерьера
Нет отзывов
Меня зовут Андреев Дмитрий! Я дипломированный специалист - Архитектор. Сделаю планировку Вашей квартиры эргономичной и функциональной, которая вместит себя все требования и пожелания каждого члена семьи, а интерьер мечты - незабываемым и продуманным до мелочей. В процессе проектирования увидите как выстраивается Ваша будущая квартира, от внешнего вида, до различных сценариев света и жизни в ней. Предоставлю профессиональную строительную бригаду, которая реализует все наши с Вами идеи в жизнь! Также проведу полную комплектацию проекта и прослежу за ходом выполнения всех строительных работ. Я не просто делаю дизайн интерьера, я создаю образ жизни.
