

Vera Tarlovskaya
Дизайнеры интерьера
Отзывы о: Vera Tarlovskaya 3
5
3 отзыва
Качество работы
5.0
Коммуникация
5.0
Стоимость
5.0
Наша мебельная компания Berezhno воплотила в жизнь,несколько проектов дизайнера Веры Тарловской!Все клинты очень довольны ,выполненной работой! Вера воплотила в жизнь все их пожелания и мечты !
08/Декабрь/2022
Вера сделала нашу квартиру с большим профессионализмом и вкусом. До того как мы обратились к ней, мы сами не очень понимали что хотим получить, не было общей картинки. Из разрозненного набора наших « хотелок», Вера сумела сделать цельное пространство, уютное и светлое, которое 100% подходит нам. Результат превзошел все наши ожидания. . . Порадовал творческий подход и очень тщательная проработка деталей. Очень порадовало что учитывался наш бюджет и нам не предлагалось каких то сверхдорогих предметов интерьера и мебели. . . Мы рекомендуем Веру Тарловскую !
19/Март/2016
Ремонт был потрясающим! Было очень интересно выбирать каждый элемент, рассматривать оттенки, текстуры.... благодаря этому дизайнеру наша квартира стала прекрасной, и при этом я чувствую, что это моя квартира, мой выбор.
28/Февраль/2016
Об эксперте
Об опыте
Дизайн квартиры, дома и сада "под ключ". По договоренности и за соответствующую доплату: 1. Работаем в удобное для вас время в выходные (суббота, воскресенье, вечерние, ночные часы и праздничные дни). 2. Осуществляем подбор реальных материалов с доставкой образцов на обьект или в любое удобное для вас место, экономим ваше время. Делаем интерьер "под клиента". Оснащаем ваш интерьер уникальные предметами интерьера и артобъектами многие из которых изготавливаем в наше мастерской. Возможна работа с разным бюджетов, в разном сегменте. Работаем с любыми площадями.
Категории специализации
Архитекторы, Гардеробные и кладовые комнаты, Декораторы и стилисты интерьера, Детские и пеленальные, Дизайнеры интерьера, Проектирование и строительство, Производство и установка кухонь, Ремонт и отделка квартир и домов, Фотографы
Ценовой сегмент: ₽
Услуги
Визуализация интерьера
Дизайн ванной комнаты
Дизайн детской спальни
Дизайн игровой комнаты
Дизайн кухни
Дизайн спальни
Интерьерная фотосъемка
Консультация по цвету
План дома
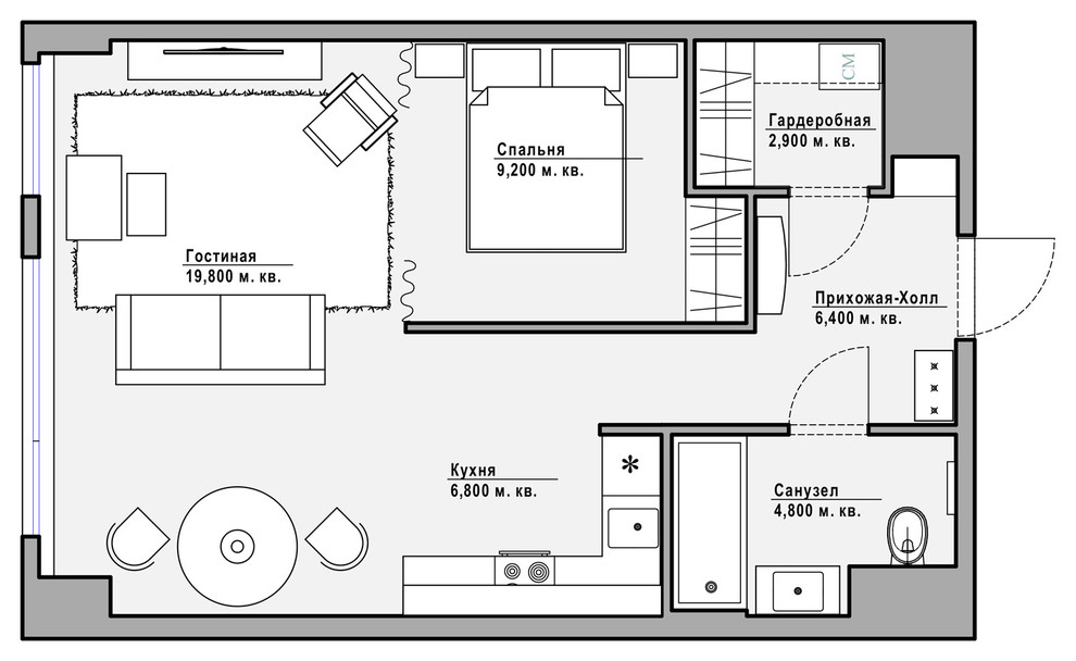
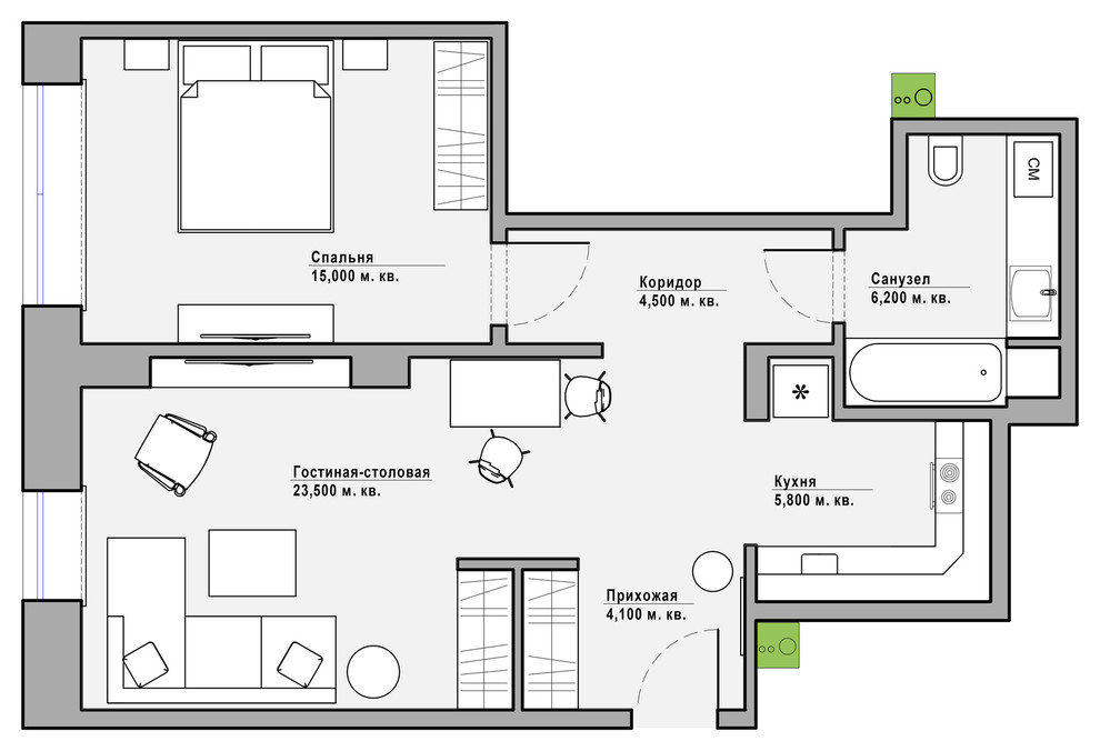
План этажа
Планировка пространства
Предпродажная подготовка квартиры
Украшение дома
Чертеж на заказ
Экодизайн
Элитный ремонт
Энергосберегающий дом
Альбомы идей 6










