
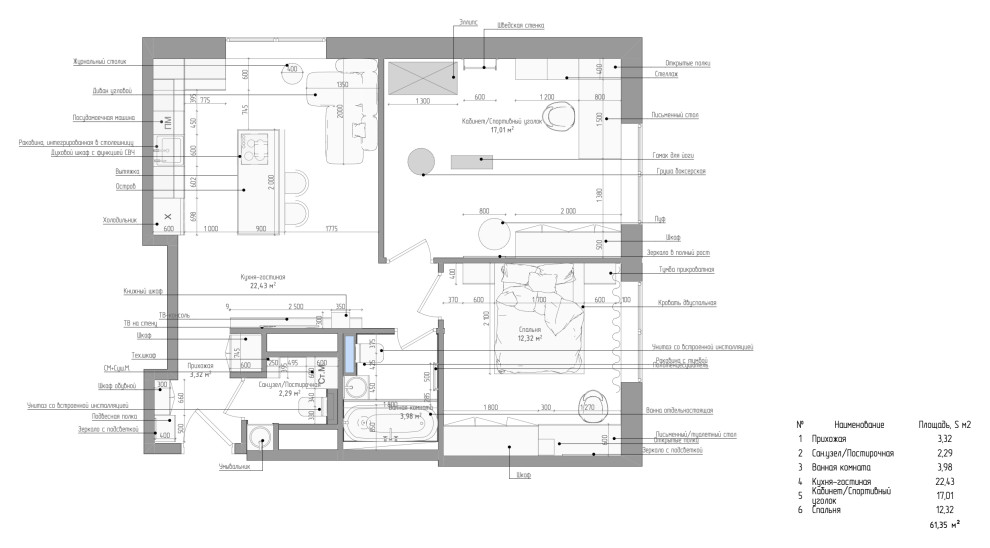
Квартира 91 м2
34

Дизайнеры интерьера
Нет отзывов
Правильный Вектор вашего ремонта! Добрый день! Приятно познакомиться, мы дизайнерское бюро полного цикла Вектор. Занимаемся дизайном, ремонтом и подбором товаров для дома по выгодной цене. С 2016 года Вектор создает дизайн-проекты жилых пространств «под ключ» - от профессионального замера до финального декора. Работаем 24/7 по всей территории РФ. Связаться с нашими дизайнерами можно в любое удобное для вас время в мессенджерах, WhatsApp или по телефону. У нас хорошо отлажены механизмы удаленной работы и онлайн-консультаций. За пять лет наша команда реализовала более 1000 дизайн-проектов в 22 стилях, с которыми вы можете ознакомиться на нашем сайте - vector-group.pro/ Вектор на приватность и конфиденциальность. Мы бережно храним все данные о клиенте и его проекте. Вектор на качество, а не количество. Мы берем ровно столько проектов, сколько реализуем достойно. Вектор на прозрачность и предсказуемость. Вы будете регулярно получать отчеты о ходе ремонта, находясь в любой точке мира. Основной принцип нашей компании – открытость и прозрачность: - Цены на дизайн-проекты являются фиксированными и зависят от квадратных метров. - Отдел комплектации Вектор ищет товары, которые соответствуют ценовому сегменту, согласованному с заказчиком. - Мы делаем ремонт под ключ по цене от 20000 руб. за кв. м. Открытый прайс-лист обеспечивает прозрачность цены, а точный калькулятор позволяет рассчитать точную стоимость. Также мы предоставляем услугу технадзора и авторского надзора. - Сроки работ по дизайну и ремонту фиксируются в договорах и четко соблюдаются. На данный момент с нами сотрудничает более 20 профессиональных дизайнеров и более 15 бригад по ремонту. Мы не гонимся за количеством, для нас главное реализовать качественно!
