
Проект квартиры 50 м. кв
12
г. Санкт-Петербург

Дизайнеры интерьера

Проект квартиры 50 м. кв
12
г. Санкт-Петербург

Стрельна, дизайн квартиры 200 м. кв., терасса 100 м. кв.
75

Проект кухни-гостиной 40 м. кв.
10

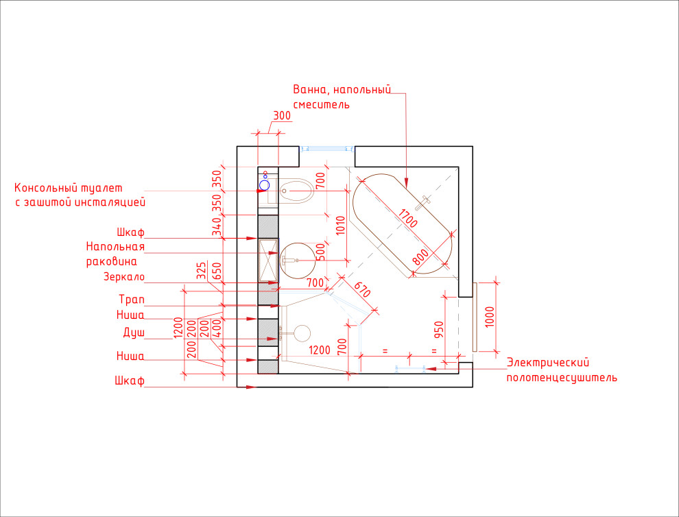
Проект ванной 9 м. кв
7
г. Санкт-Петербург

Проект квартиры 100 м. кв. на петровском острове
22

Проект дома 200 м. кв.
3
г. Санкт-Петербург

Проект ванной 6 м. кв
7

Проект квартиры 40 м. кв на Парфеновской улице
24

Стрельна 2 к. квартира 55 м. кв.
30
Нет отзывов
Interior Designers & Decorators
Ценовой сегмент: ₽₽
