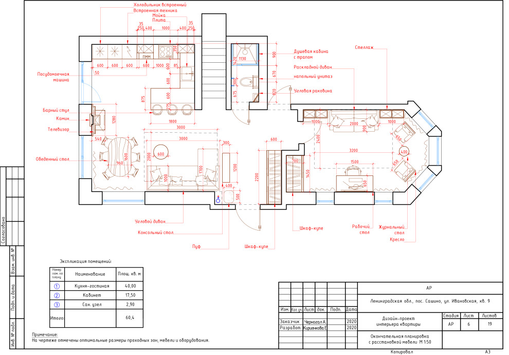
Проект кухни-гостиной 40 м. кв.
Проект разработан в стиле современной классики, в холодных перламутровых оттенках. Нежно-розовые пудровые цвета прекрасно гармонируют с холодными голубыми оттенками, и все это дополняется просто потрясающе огромным количеством света, за счет окон в пол, что создает ощущение замка снежной королевы и некоевого зимнего интерьера. А за счет отсутствия стен интерьер становится невесомым. Да и классические фасады не давят визуально вниз.
Год реализации: 2019
Стоимость проектирования: 1 050 000 ₽
10 фотографий











