
18
улица Заповедная

Дизайнеры интерьера

18
улица Заповедная

21
улица Защитников Кавказа

15
улица Защитников Кавказа
Нет отзывов
Занимаюсь проектированием интерьеров, начиная с замеров квартиры и заканчивая разработкой технической документации и визуализацией интерьера. Большой опыт в реализации своих проектов - есть своя строительная бригада, небольшой склад для комплектации и хранения материалов и предметов интерьера. Также занимаюсь всей логистикой при ремонтных работах - от организации покупки материалов до их доставки и хранения.
Ценовой сегмент: ₽

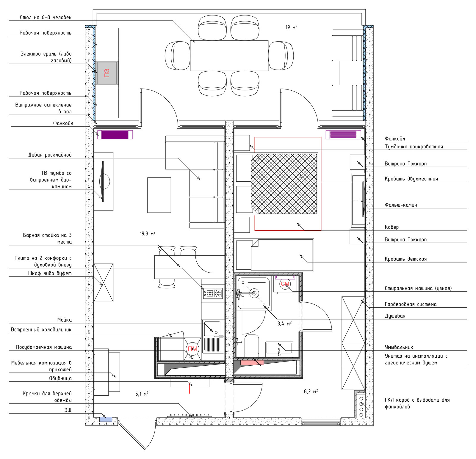
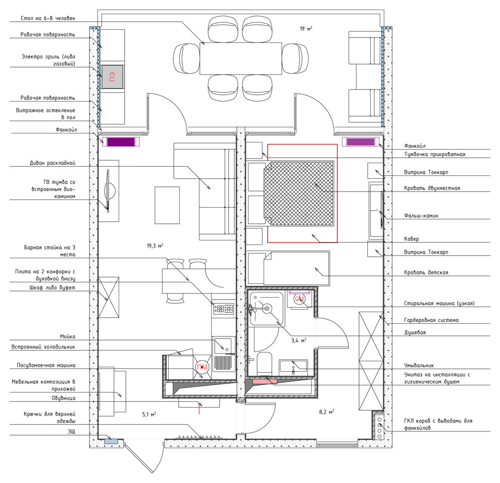
8 ошибок эргономики: Как перестать их совершать
Максим Нода
39

Как правильно: Планировка узкой кухни
Максим Нода
52

Как правильно: Планировка маленькой спальни 9-10 метров
Максим Нода
33

Как правильно: Организовать пространство в просторной спальне 20+
Максим Нода
19
