
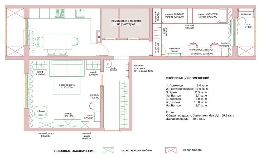
Проект дизайна интерьера 2-х комнатной квартиры в Москве
5
г. Москва

Дизайнеры интерьера

Проект дизайна интерьера 2-х комнатной квартиры в Москве
5
г. Москва

"Жизнь как искусство"- проект 3-х комнатной квартиры в ЖК "Мещерский лес"
5
г. Москва

"Путешествие в релакс"- проект 2х комнатной квартиры в Новогиреево
6
г. Москва

"Южное утро с видом на море" - проект 3х комн. квартиры в ЖК "Ясенево,14"
7

"Карибский круиз" - проект художественно-стилевого решения 3-х комн. квартиры
5
г. Пятигорск

"Апартаменты для гедонистов"- проект 3х комн. кв. в доме на Карамышевской наб.
2
г. Москва

"Утренний туман" - проект 1 комн. квартиры в UP-квартале "Сколковский"
8

"Акварельный альбом"- проект 3х комн. квартиры в Замоскворечье
29
г. Москва

"Средиземноморский каприз" - проект 2х комн. квартиры в ЖК "Мичуринский"
0
5
8 отзывов
26/Февраль/2023
14/Февраль/2023
09/Ноябрь/2021
08/Ноябрь/2021
20/Январь/2018
30/Апрель/2016
09/Февраль/2016
27/Январь/2016
Маликова Галина - дизайнер интерьера и ландшафтный дизайнер. Для вас - разработка планировки дома, персональные дизайн-проекты, комплектация проектов, подбор мебели и декора! Создаем гармоничные интерьеры для счастливой жизни. Дизайн в любом стиле, а еще лучше стиль + идея, полное соответствие требованиям и надеждам клиента, индивидуальные концепции для вас.
Ценовой сегмент: ₽₽₽₽
