

Юлия Переверзева
Дизайнеры интерьера
Отзывы о: Юлия Переверзева 0
Нет отзывов
Об эксперте
Об опыте
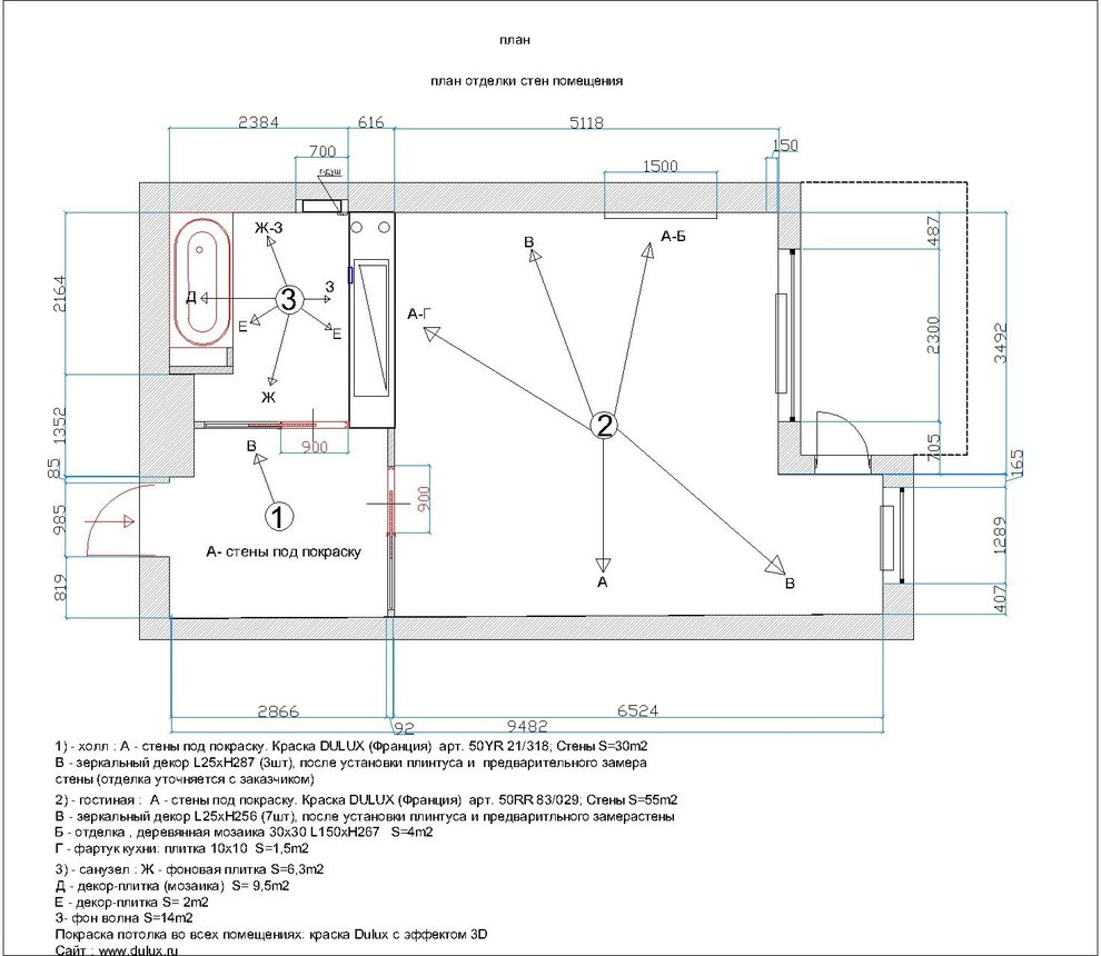
Проектирование жилых и общественных помещений любой сложности: квартиры, коттеджи, офисы, кафе, салоны красоты, магазины. Опыт самостоятельного ведения проектов от идеи до авторского надзора. Более 70 реализованных объектов разной сложности. Разрабатываю полный комплект Дизайн-проекта, со всей необходимой документацией и 3Д визуализацией будущего интерьера. Также выполняю Экспресс-дизайн по расстановки мебели будущего интерьера и Концепт-борды (коллажи). Работаю во всех стилевых направлениях.
Категории специализации
Архитекторы, Гардеробные и кладовые комнаты, Декораторы и стилисты интерьера, Детские и пеленальные, Дизайнеры интерьера, Корпусная мебель, Проектирование и строительство, Производство и установка кухонь, Ремонт и отделка квартир и домов
Ценовой сегмент: ₽
Услуги
Визуализация интерьера
Дизайн ванной комнаты
Дизайн гардеробной/кладовой
Дизайн детской спальни
Дизайн игровой комнаты
Дизайн интерьера
Дизайн комнаты для малыша
Дизайн кухни
Дизайн прихожей
Дизайн спальни
Консультация дизайнера
Консультация по цвету
Планировка пространства
Подбор мебели
Ремонт квартиры
Элитный ремонт
Альбомы идей 1






