

ERKER Architects
Архитекторы

Отзывы о: ERKER Architects 0
Нет отзывов
Об эксперте
Об опыте
Architects & Building Designers
Категории специализации
Архитекторы, Беседки и веранды, Гардеробные и кладовые комнаты, Детские и пеленальные, Дизайнеры интерьера, Проектирование и строительство, Производство и установка кухонь, Ремонт и отделка квартир и домов, Специалисты по ремонту кухни
Услуги
Архитектурное проектирование
Архитектурные чертежи
Архитектурный дизайн
Дизайн летней кухни
Дома из клееного бруса
Домик у бассейна под ключ
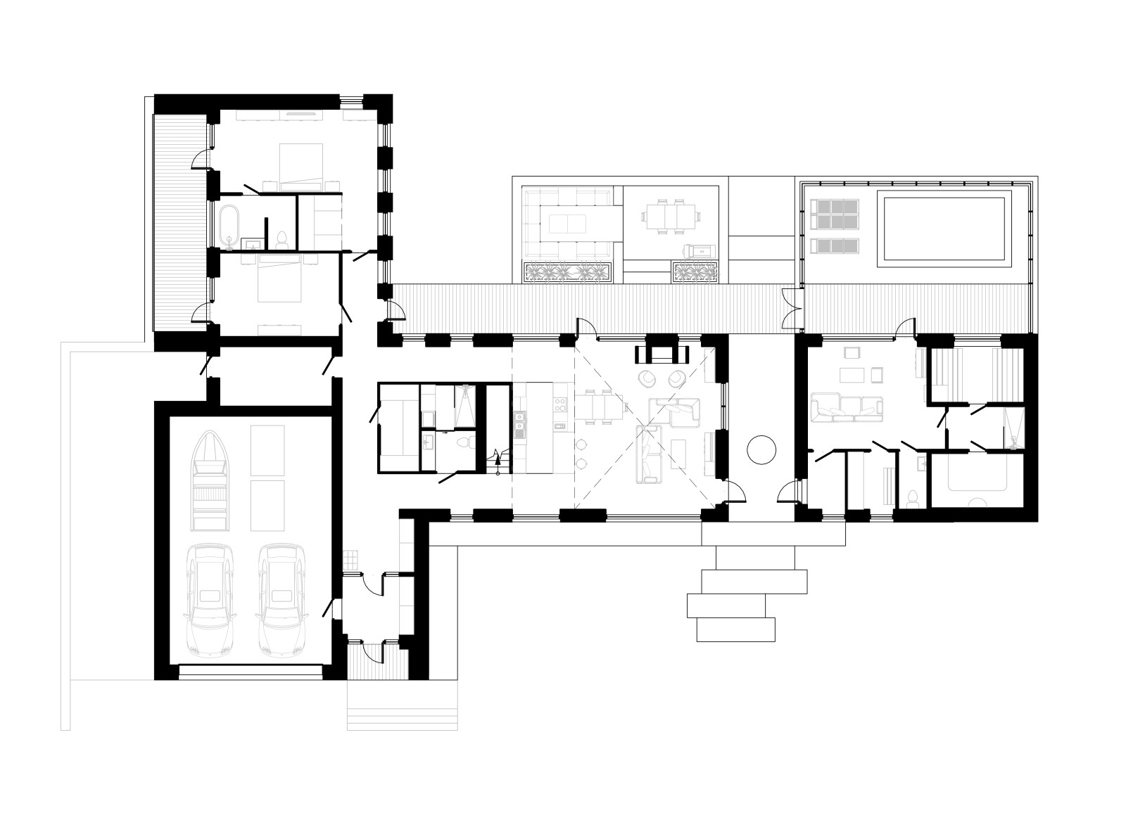
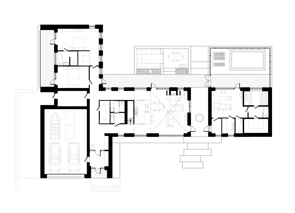
План дома
План этажа
Планировка пространства
Проект дома на заказ
Ремонт кухни
Строительство дома
Экологичное зеленое строительство
Энергосберегающий дом
Альбомы идей 1
