logo

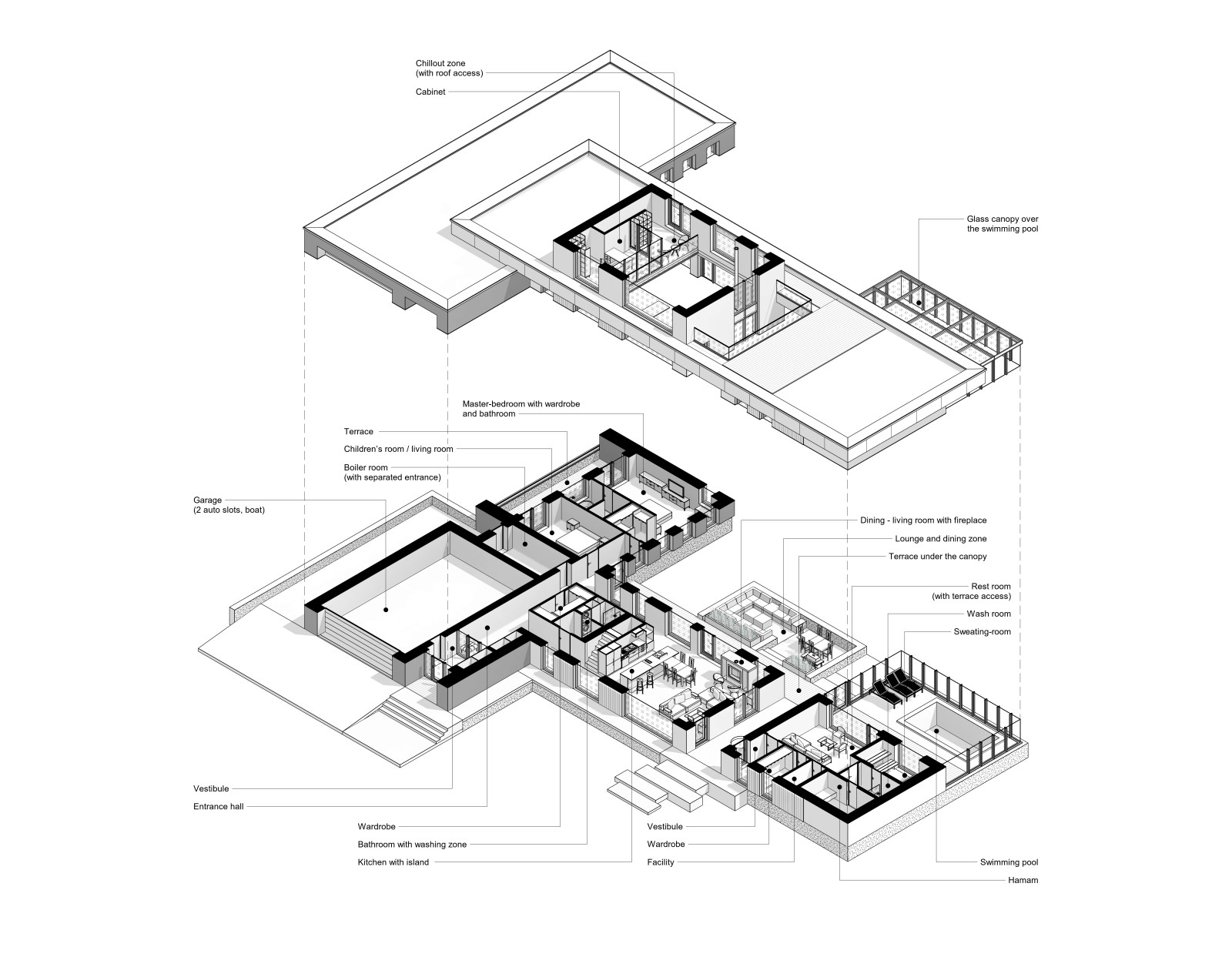
RESIDENTIAL HOUSE WITH GARAGE AND SPA

Год реализации: 2023
photo

5 фотографий

RESIDENTIAL HOUSE WITH GARAGE AND SPA
RESIDENTIAL HOUSE WITH GARAGE AND SPA
RESIDENTIAL HOUSE WITH GARAGE AND SPA
RESIDENTIAL HOUSE WITH GARAGE AND SPA
RESIDENTIAL HOUSE WITH GARAGE AND SPA
RESIDENTIAL HOUSE WITH GARAGE AND SPA
RESIDENTIAL HOUSE WITH GARAGE AND SPA
RESIDENTIAL HOUSE WITH GARAGE AND SPA
RESIDENTIAL HOUSE WITH GARAGE AND SPA
RESIDENTIAL HOUSE WITH GARAGE AND SPA
Фоновое изображение профиля ERKER Architects
Фото профиля ERKER Architects

ERKER Architects

Архитекторы