
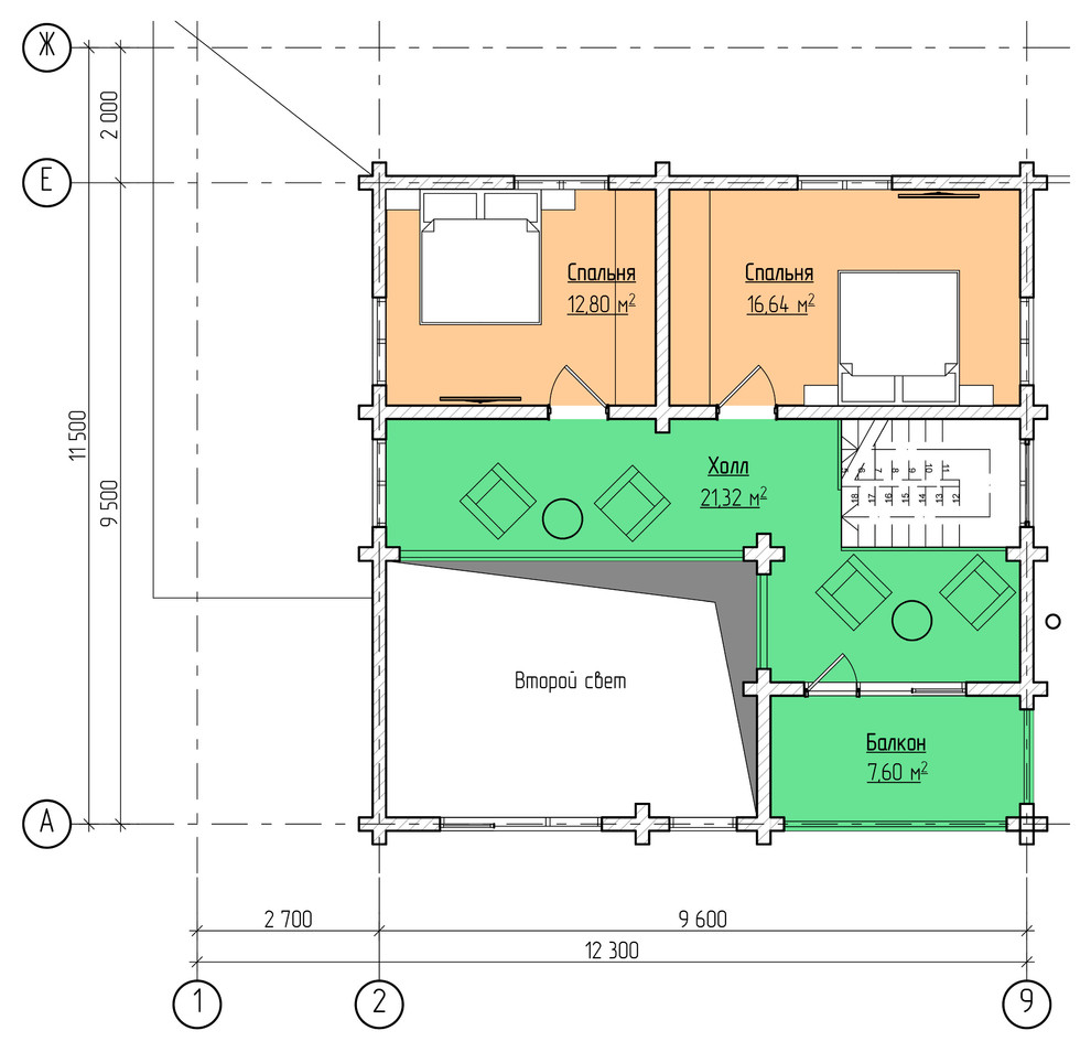
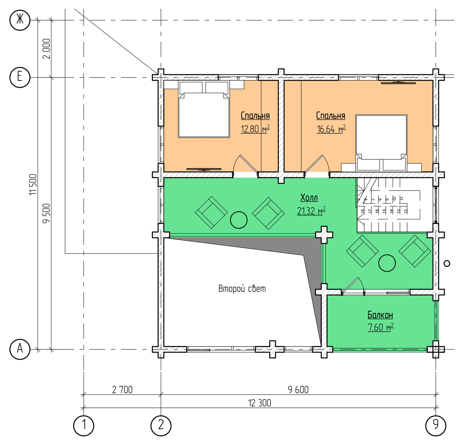
ПРОЕКТ ДОМА ИЗ КИРПИЧА 133,58М²
5
г. Новосибирск

Проектирование и строительство

ПРОЕКТ ДОМА ИЗ КИРПИЧА 133,58М²
5
г. Новосибирск

Проектирование и строительство дома из кирпича 350 кв.м.
0
г. Новосибирск

Дом из профилированного бруса
1
г. Новосибирск

Проектирование. Строительство. Дом из клееного бруса 420 кв.м.
0

Проектирование. Строительство. Дом из кирпича. Площадь 400 кв.м.
13
г. Новосибирск

Проектирование. Строительство. Дом из клееного бруса.
0
г. Новосибирск

Проектирование. Строительство. Дом из кирпича.
0
г. Новосибирск

Проектирование. Двухэтажный жилой дом из кирпича с подвалом и гаражом (S=454.9м)
10
г. Новосибирск

Проектирование. Двухэтажный жилой дом из бруса 170 кв.м.
8
г. Новосибирск
Нет отзывов
На рынке малоэтажного строительства Сибири компания с 2006 года. В настоящее время включает в себя собственный отдел проектирования (архитектурное, рабочее), строительный отдел, собственный технический надзор. Спроектировано около 2000 объектов.
