Проектирование. Двухэтажный жилой дом из кирпича с подвалом и гаражом (S=454.9м)
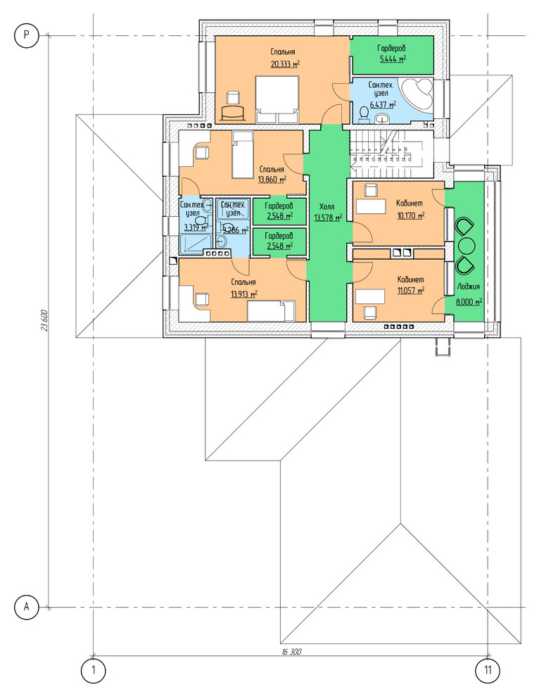
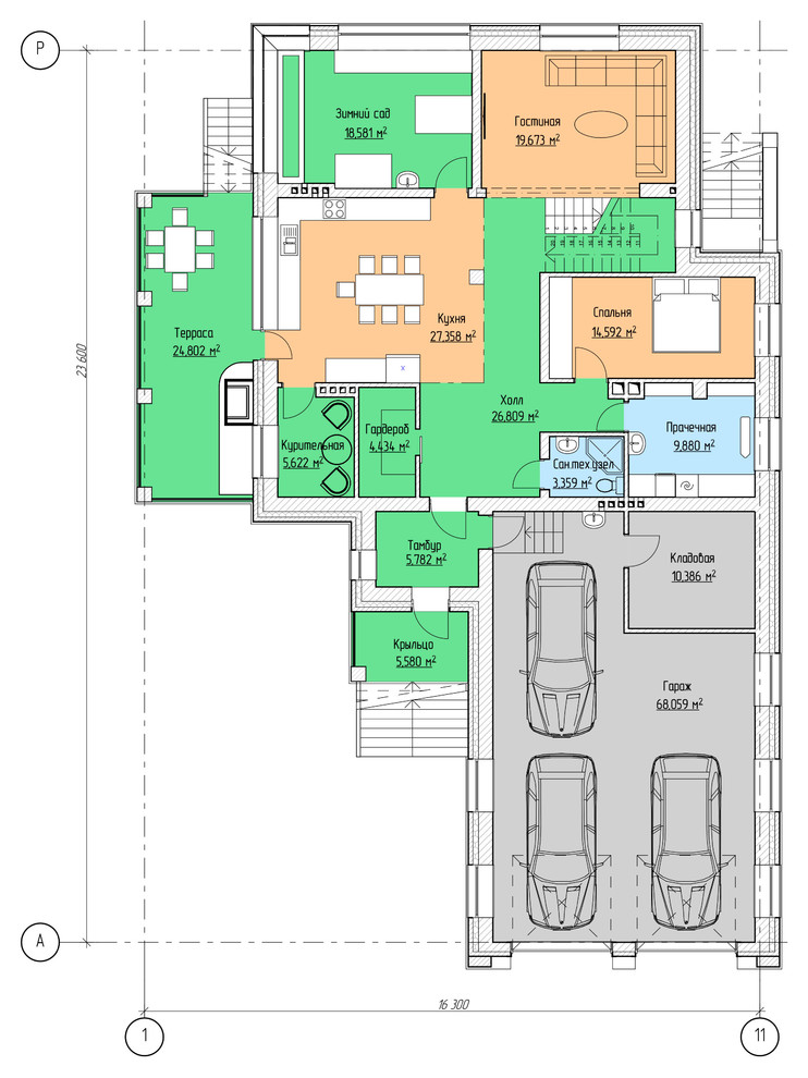
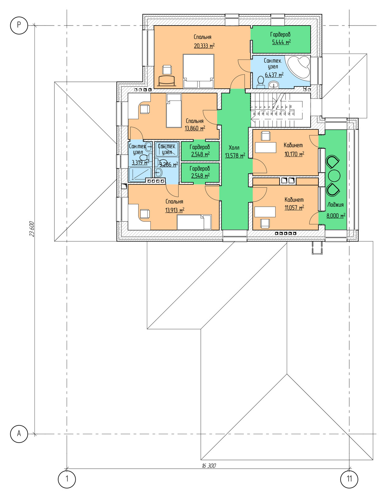
Двухэтажный дом с подвалом из кирпича общей площадью 440 кв. м. . Дом идеально подходит для тех кто не боится экспериментировать и он, безусловно, будет радовать своего владельца не только его внешним видом, но и своим функциональным заполнением, который позволяет обеспечить условия для комфортного проживание семьи из 6 - 10 человек. Дом совмещает в себе: большой гараж на две машины, множество спален, большая столовая зона и террасы. . . Экстерьер и отделка фасада: . Дом выполнен в стиле прерий с применением множества декоративных элементов и видов отделки, таких как: штукатурка, камень и дерево. Образ дома главным образом формирует сложная вальмовая кровля с множеством врезаний фронтонов и двух куполов. Фасады подчеркивают оформленные округлыми декоративными элементами, выходы и террасы. . . Архитектурно-планировочные и конструктивные решения: . Для разработки планировочных решений была поставлена задача объединить дом на большую семью и гараж на два автомобиля. Для проживания современной семьи жилая зона имеет все необходимые зоны и помещения, такие как: столовая и кухонная зона, зона для просмотра телевизора, просторные коридоры, несколько спален гардеробов и санузлов, комната для гостей, постирочная и котельная. Две детские спальни имеют два уровня, а родительская спальня имеет собственный гардероб, который связан с санузлом с балкончиком. Кухонная, столовая и зона гостиной с камином объединены в одно помещение, что дает больше пространства и света. В планировке предусмотрен камин и, что примечательно, - настоящая русская печка. . . Площадь застройки - 275кв. м. . Общая площадь подвала-2.720 -130 кв. м. . Общая площадь 1-ого этажа 0.000 -213 кв. м. . Общая площадь 2-ого этажа на отметке +3.250 - 112кв. м. . Общая площадь здания - 455кв. м. . Строительный объем - 1680куб. м. . Общая площадь здания с террасой и крыльцом - 486кв. м.
10 фотографий











